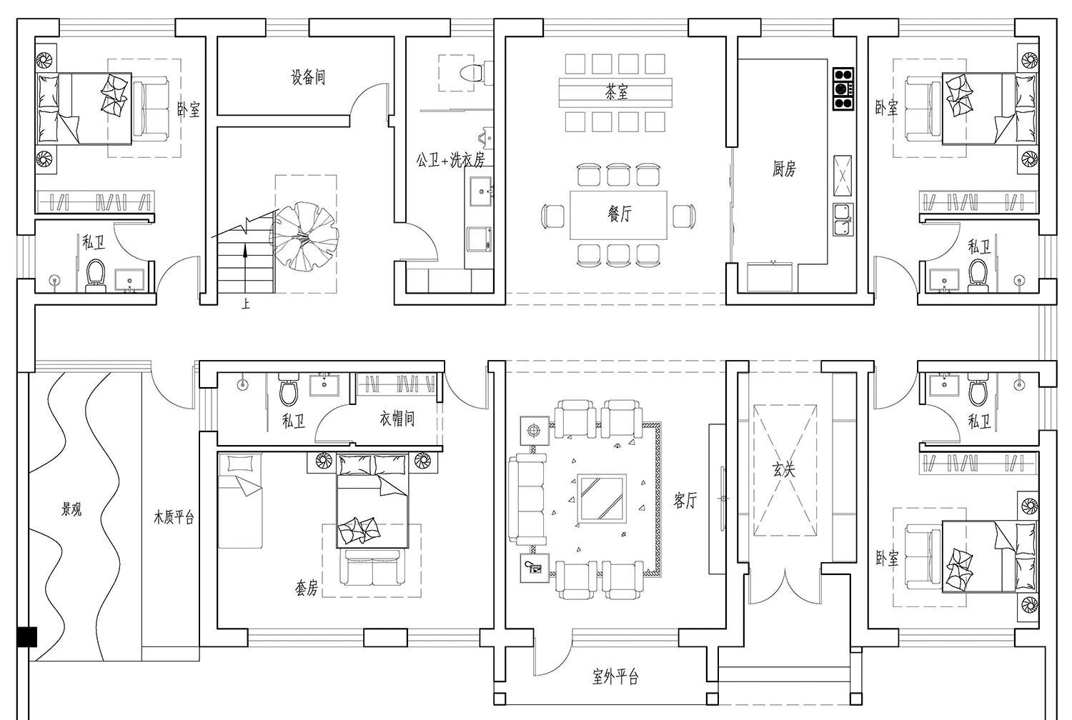
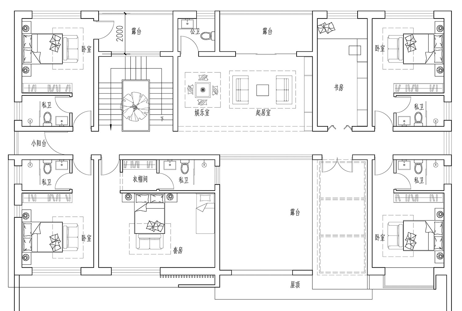
在环境优美的乡村建一栋别墅多是一件美事儿,聚会、烧烤、看星星,和三五知己游山玩水看看故乡的风景。今天给大家推荐一款="://www.lemeizhai.com/Picture.asp?PicClassID=88" target="_self" style="font-size: 24px; text-decoration: underline;">二层别墅设计,这别墅是四川旬总特意定制的,设计师按照旬总家乡的地理环境设计的现代风格。

别墅层数: 二层
别墅风格: 现代
占地面积:279㎡
开 间:21.5m
进 深:13m
建筑占地:21.5m×13m
建筑面积:501㎡
预估造价:80.1万
建筑结构:砖混结构



主体设计:

客厅、餐厅、厨房、卧室、公卫、阳台、露台。

。
="://www.lemeizhai.com/index.asp" target="_self">转载请注明出自轩鼎别墅设计:://www.lemeizhai.com/index.asp