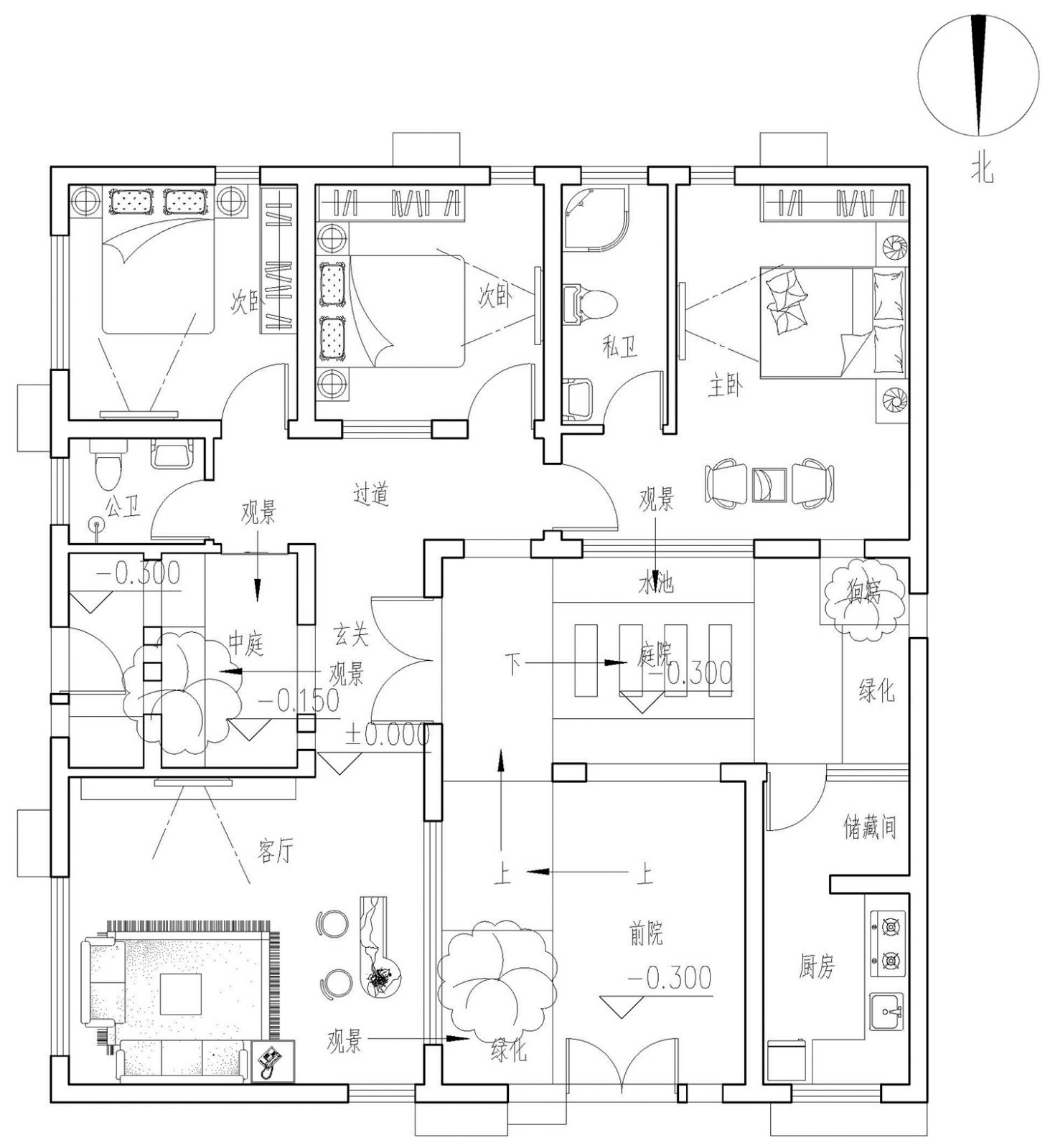
住别墅有很多好处,但对于老人来说还是喜欢住平房,二层上下楼太麻烦,容易出意外。今天给大家推荐一款适合老年人居住地一层="://www.lemeizhai.com/Picture.asp?PicClassID=85" target="_self" style="font-size: 24px; text-decoration: underline;">别墅设计,这款别墅是一层避免上下楼。喜欢的就收藏吧嘿嘿

别墅层数: 一层
别墅风格: 中式
占地面积:141㎡
开 间:11.5m
进 深:12.3m
建筑占地:11.5m×12.3m
建筑面积:102㎡
主体造价:12.0~17.0万
建筑结构:砖混结构


主体设计:
客厅、餐厅、厨房、卧室、公卫、阳台、露台。

。
转载请注明出自轩鼎别墅设计:://www.lemeizhai.com/index.asp