农村地区不在那么贫穷了,一些发展好的地方几乎家家户户都有小别墅,是不是很羡慕呢?今天小编推荐的是一款仿古设计的二层合院式="://www.lemeizhai.com/Picture.asp?PicClassID=88" target="_self">别墅设计

别墅层数: 二层
别墅风格: 中式
占地面积:354㎡
开 间:18m
进 深:19.7m
建筑占地:18m×19.7m
建筑面积:429㎡
主体造价:70.0~75.0万
建筑结构:砖混结构


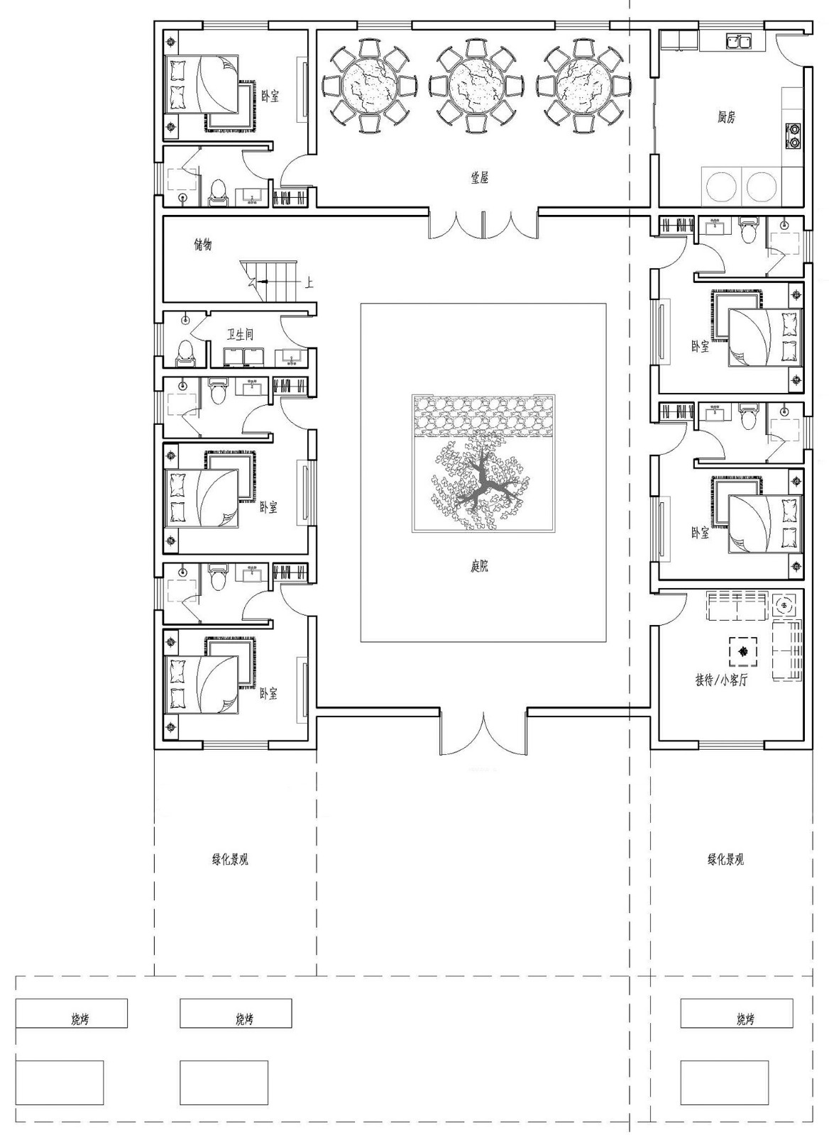
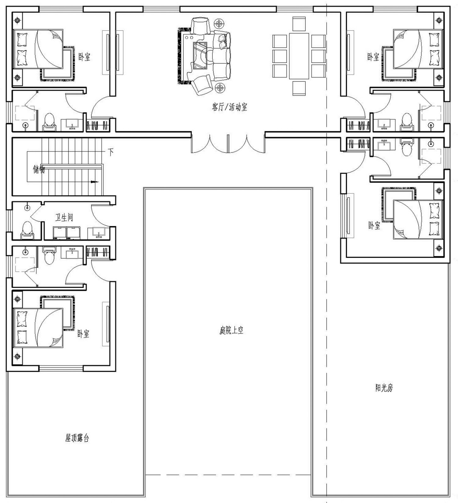
主体设计:

客厅、餐厅、厨房、卧室、公卫、阳台、露台。

。
转载请注明出自轩鼎别墅设计:://www.lemeizhai.com/index.asp