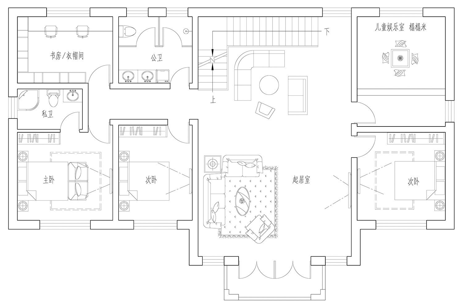
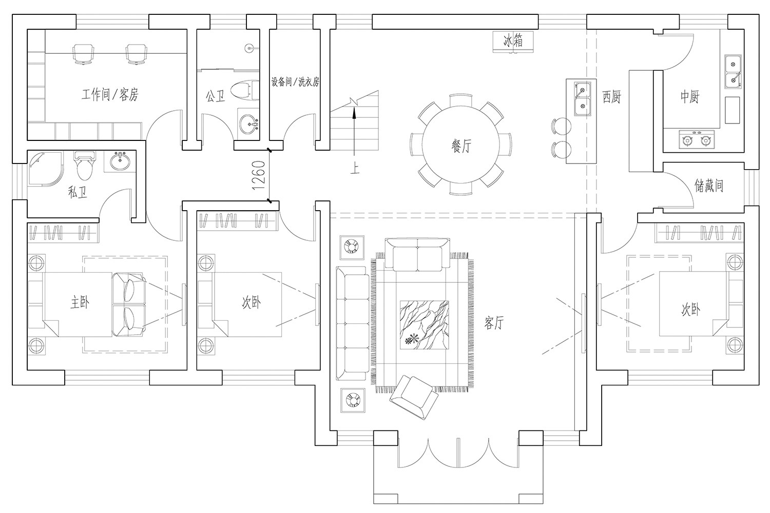
建别墅一定要有庭院,因为有庭院的别墅才能称之为别墅。今天给大家推荐的是二层="://www.lemeizhai.com/search.asp?SearchType=Software&imageField.x=20&imageField.y=11&SearchKey=%D6%D0%CA%BD%B1%F0%CA%FB%C9%E8%BC%C6" target="_self">新中式别墅设计,这款别墅四平八稳很有层次,平顶配真石漆、文化石,屋顶可以晾晒粮食。

别墅层数: 二层
别墅风格: 中式
占地面积:197㎡
开 间:18.5m
进 深:10.7m
建筑占地:18.5m×10.7m
建筑面积:393㎡
主体造价:55.0~60.0万
建筑结构:砖混结构


主体设计:

客厅、餐厅、厨房、卧室、公卫、阳台、露台。

。
转载请注明出自轩鼎别墅设计:://www.lemeizhai.com/index.asp