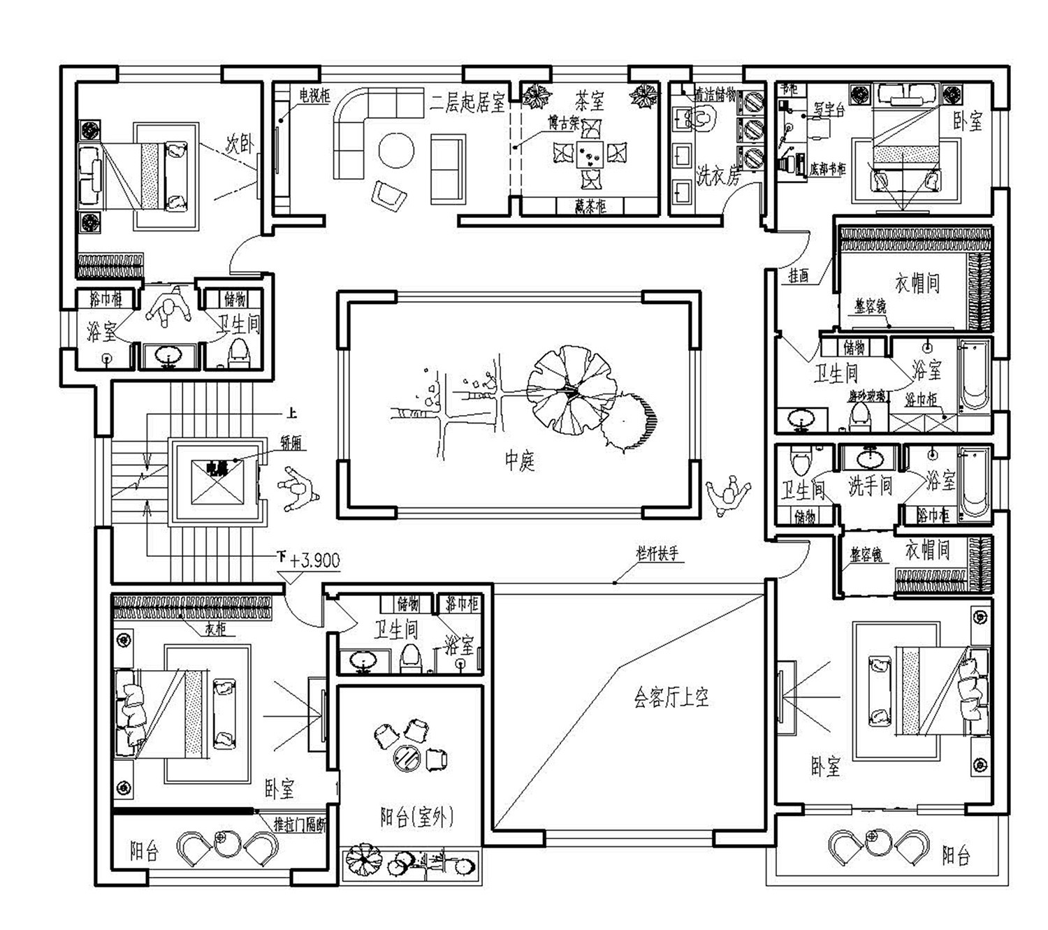
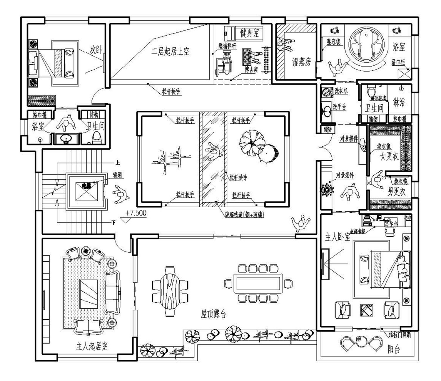
上了年纪就风风光光回老家建漂亮别墅享受生活,人打拼一辈子就是让自己过得舒舒服服。今天给大家推荐一款="://www.lemeizhai.com/Picture.asp?PicClassID=91" target="_self" style="font-size: 24px; text-decoration: underline;">三层别墅设计,属于现代风格,有中庭,大落地窗,屋主是个会生活的人。

别墅层数: 三层
别墅风格: 现代
占地面积:407㎡
开 间:21.7m
进 深:18.8m
建筑占地:21.7m×18.8m
建筑面积:1200㎡
主体造价:155.0~160.0万
建筑结构:砖混结构

主体设计:

客厅、餐厅、厨房、卧室、公卫、阳台、露台。

。

转载请注明出自轩鼎别墅设计:://www.lemeizhai.com/index.asp