世事无常但求半辈子平平安安的,多陪陪家人只求不抱憾终身,在乡村建一栋别墅安安稳稳的度过幸福的一生。今天给大家推荐的="://www.lemeizhai.com/Picture.asp?PicClassID=88" target="_self" style="font-size: 24px; text-decoration: underline;">二层别墅设计是湖南何总私人定制的现代别墅款,这款别墅特别彰显户主的气质与品味,是双拼别墅设计的典范之一。

别墅层数: 二层
别墅风格: 现代
占地面积:179㎡
开 间:16.5m
进 深:10.9m
建筑占地:16.5m×10.9m
建筑面积:330㎡
主体造价:43.0~48.0万
建筑结构:砖混结构


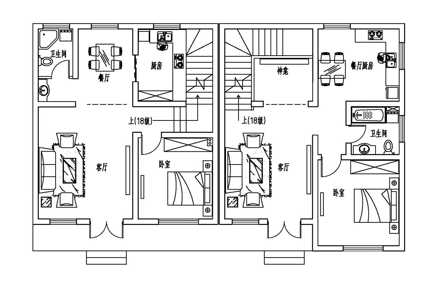
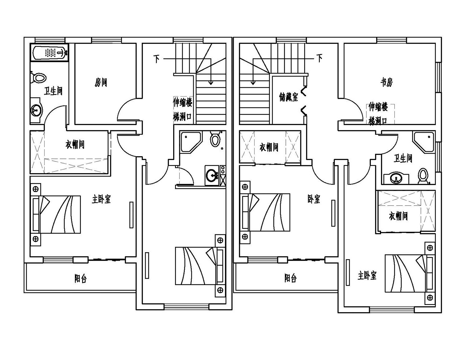
主体设计:

客厅、餐厅、厨房、卧室、公卫、阳台、露台。

。
转载请注明出自轩鼎别墅设计:://www.lemeizhai.com/index.asp