今天给大家推荐一款一层欧式田园别墅,这款别墅是某伐木场吴老板私人订制的,为的是在场地住得舒服,吴老板是个热爱生活懂得享受的人,。这款别墅简洁好看很适合伐木场和农场建造,砖混结构造价实惠23万左右,厨房餐厅厕所一应俱全。想要更多的一层别墅图纸请点击="://www.lemeizhai.com/Picture.asp?PicClassID=85" target="_self" style="font-size: 24px; text-decoration: underline;">农村别墅设计


别墅层数: 一层
别墅风格: 欧式
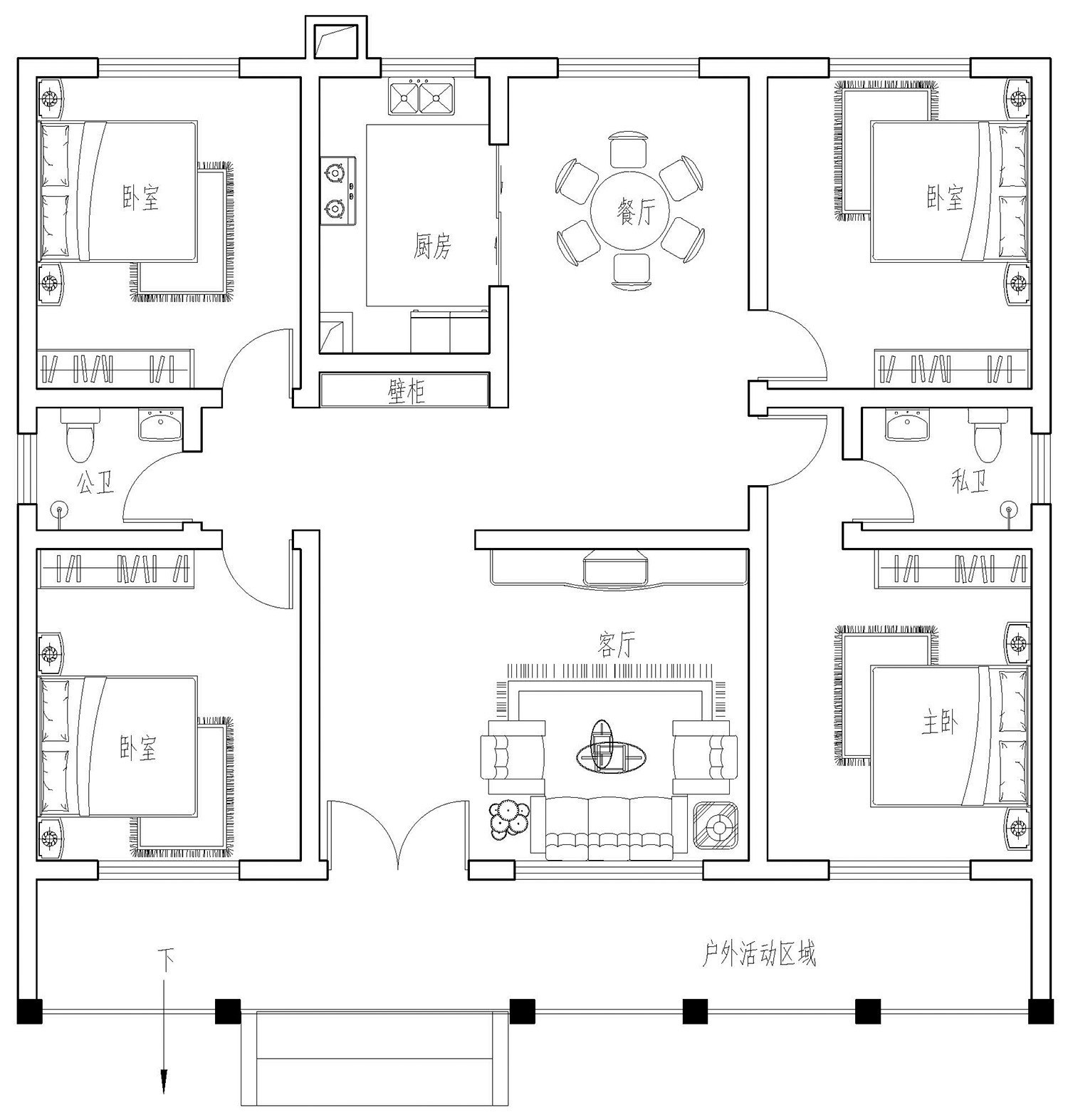
占地面积:131㎡
开 间:12.9m
进 深:10.2m
建筑占地:12.9m×10.2m
建筑面积:148㎡
主体造价:18.6~23.6万
建筑结构:砖混结构

主体设计:

客厅、餐厅、厨房、卧室、公卫、阳台、露台。
。
转载请注明出自轩鼎别墅设计:://www.lemeizhai.com/index.asp