您好,欢迎访问轩鼎房屋图纸网,轩鼎建筑为您提供新农村房屋设计图、别墅设计图纸以及别墅定制设计与咨询服务。
 
 
  热门搜索:自建房 别墅设计 房屋设计图   
网站首页 图纸大全 定制设计 作品展示 建房图文 联系我们
一层房屋图纸
二层房屋图纸
三层房屋图纸
四层以上图纸
双拼房屋图纸
其他建筑图纸
 
 
 您的位置:首页 ->> 建房图文 ->> 别墅设计:大豪宅也可以设计得很“狂野”,用钢板混凝土造出奇迹
 
 

别墅设计:大豪宅也可以设计得很“狂野”,用钢板混凝土造出奇迹

发布时间:2022/7/7 15:46:03 点击数: 1882次 

今天小编为大家带来的是一个400平的别墅,一个“乞丐风”的别墅,配色低调的仿佛“破铜烂铁”的组合,但是这低调的配色,却是主人的特色喜好。


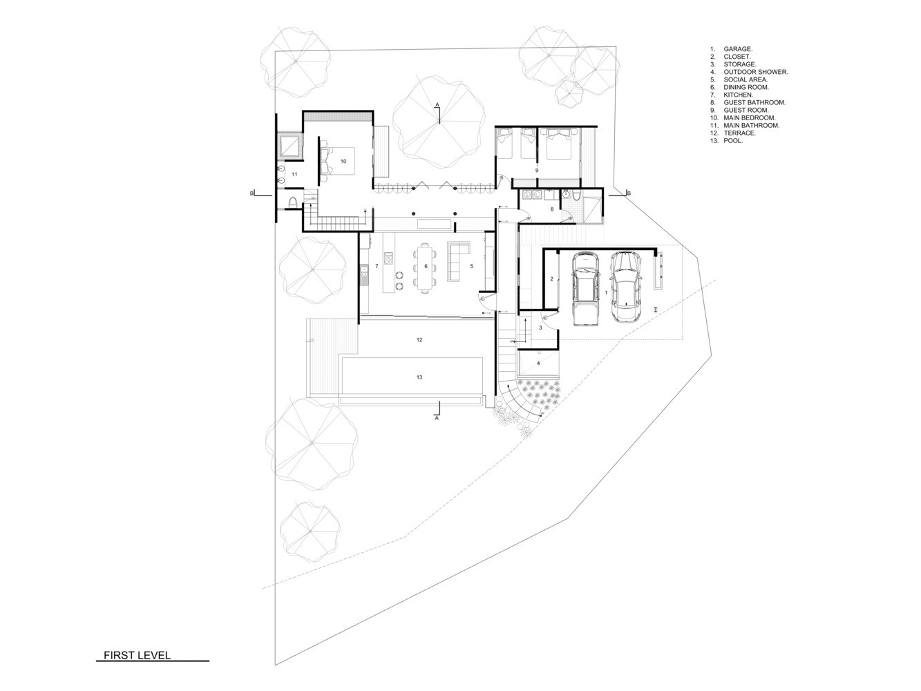
别墅设计平面布局图:

房主建房的初衷一个是考虑自身的追求喜好,另一方面是考虑如何让自家建筑融入到环境中去,不至于那么突兀而破坏了环境的氛围。另外最重要的一点是:设计师考虑到了当地环境和海风,为了保证房子的安全,设计师选择了粗野主义的概念,这是一个带有渗透膜的钢筋混凝土建筑,可以适应时间、建筑方案和气候。



 
· 农村自建房瓷砖如何挑选(自建房...
· 回老家盖一座别墅,和家人住在一...
· 农村自建房卫生间布局设计(农村...
· 欧式风格的别墅是现在人们最喜欢...
· 有车一族的福音两款有车库的二层...
· 板楼和塔楼应该怎么选 (塔楼与板...
· 孩子喜绝对喜欢的农村二层自建别...
· 十套别墅院子设计分享(2022农村...
  关于我们 网站事务 帮助中心
客服热线:400-079-6579
客服QQ:10928711 10928755 10928799
地址:山东省潍坊财富大厦1801
 

预定须知
顾客必读
配送方式

 


Copyright 2016 www.lemeizhai.com All Rights Reserved ICP备案序号:鲁ICP备2026012448号-1
轩鼎房屋图纸 电 话:0536-3385581 3385582 传 真:0536-3385581 地 址:山东省潍坊财富大厦1801


keywords:房屋设计图 房屋设计图 农村房屋设计图 农村房屋设计图 建房图文