您好,欢迎访问轩鼎房屋图纸网,轩鼎建筑为您提供新农村房屋设计图、别墅设计图纸以及别墅定制设计与咨询服务。
 
 
  热门搜索:自建房 别墅设计 房屋设计图   
网站首页 图纸大全 定制设计 作品展示 建房图文 联系我们
一层房屋图纸
二层房屋图纸
三层房屋图纸
四层以上图纸
双拼房屋图纸
其他建筑图纸
 
 
 您的位置:首页 ->> 建房图文 ->> 三层现代风别墅,简洁时尚,落落大方,让生活更有格调
 
 

三层现代风别墅,简洁时尚,落落大方,让生活更有格调

发布时间:2022/7/7 17:03:48 点击数: 1955次 

农村建得最多的就是欧式别墅,已经看得人有些审美疲劳了,不如选一栋简约大方的现代风别墅,简简单单才是生活的本来面目。

下面这款是上饶市横峰县张总私人订制的三层现代风别墅,多窗的设计显得落落大方,在老家建一栋,倍感宁静、温馨。

2de18b12fec54415bc088c226fa7e4e9_magic.jpg


1、别墅楼层:三层

2、主体毛坯参考造价:37-47万

3、占地面积:124平方米

4、建筑面积:364.4平方米

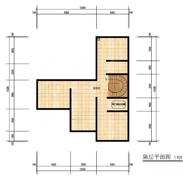
5、开间12.5米,进深14.2米

6、砖混结构,建筑高12.438米


别墅三层设计全景图:


别墅三层设计平面布局图:





 
· 建好即可拎包入住,真好
· 农村小别墅设计方案,面积不到1...
· 回家花个三四十万给爸妈建栋小别...
· 三层别墅的设计表明,想要好的別...
· 农村房屋继承(农村宅基地怎么办...
· 农村别墅设计:心目中阅读的现代...
· 什么是水性漆(水性漆的优缺点有...
· 别墅的产权一般是多少年(别墅属...
  关于我们 网站事务 帮助中心
客服热线:400-079-6579
客服QQ:10928711 10928755 10928799
地址:山东省潍坊财富大厦1801
 

预定须知
顾客必读
配送方式

 


Copyright 2016 www.lemeizhai.com All Rights Reserved ICP备案序号:鲁ICP备2026012448号-1
轩鼎房屋图纸 电 话:0536-3385581 3385582 传 真:0536-3385581 地 址:山东省潍坊财富大厦1801


keywords:房屋设计图 房屋设计图 农村房屋设计图 农村房屋设计图 建房图文