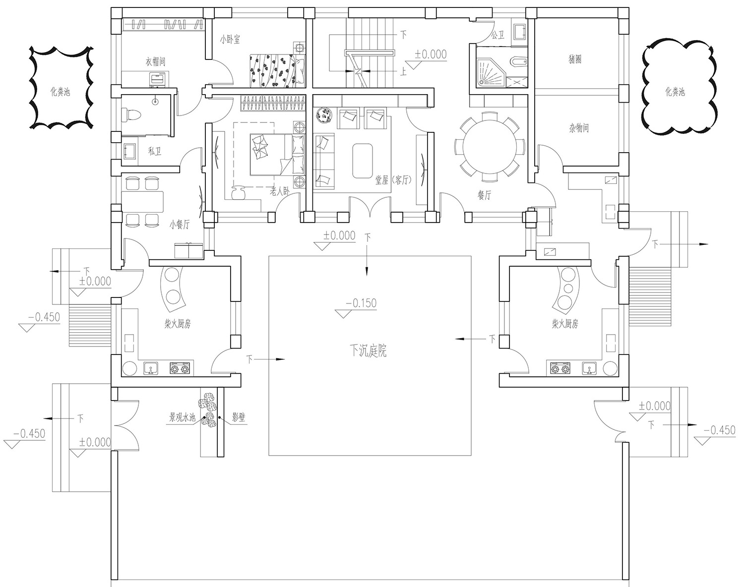
农村自建简简单单的就挺好,建个二层就不错。本期推荐的是山东刘总私人订制的="://www.lemeizhai.com/search.asp?SearchType=Software&imageField.x=16&imageField.y=26&SearchKey=%D0%C2%D6%D0%CA%BD" target="_self">新中式二层别墅设计,房屋构型回归传统,有前后门,东屋西屋都有厨房,传统的柴火房一样不缺,八个卧室足够人住,还附带猪圈吃自己养的猪最放心。
效果图:


设计功能:
建筑面积:396.69㎡
建筑尺寸:18.55m×13.6m
占地面积:195.43㎡
效果图:


主体设计:

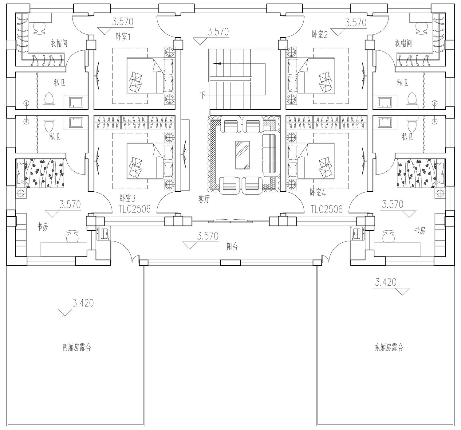
客厅、餐厅、厨房、卧室、公卫、阳台、露台。

。
转载请注明出自轩鼎自建房:://www.lemeizhai.com/