农村的传统房屋的空间利用率太少了,留那么大的院子其实没有必要,院子是要保留但必须先把面积给屋子,这样建出的房子空间大视觉感受好。今天给大家推荐的是河南郑总的="://www.lemeizhai.com/Picture.asp?PicClassID=88" target="_self">二层别墅设计,这套别墅非常漂亮,现代化的设计非常适合新时代农村的环境,内部布局宽敞,餐厅客厅分离有效利用空间。
效果图:


建筑面积:297.18㎡
基地面积:243㎡
建筑尺寸:17.5m×9.9m
占地面积:156.69㎡
效果图:


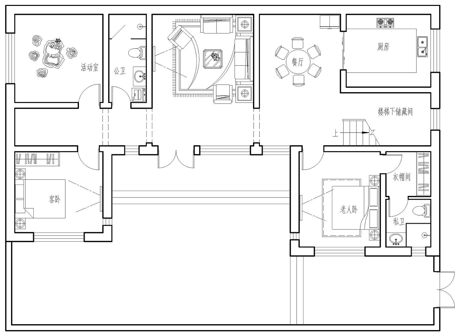
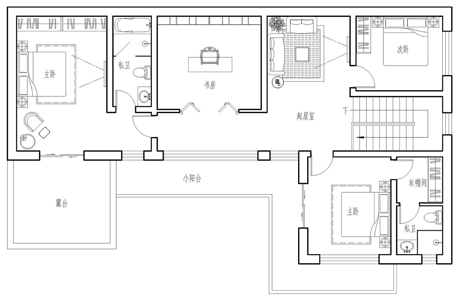
主体设计:

客厅、餐厅、厨房、卧室、公卫、阳台、露台。
。
转载请注明出自轩鼎自建房:://www.lemeizhai.com/