人这一辈子最重要的是有一个立足之地,有稳定的工作,不管干什么立足之地必须要有,不管你是农村还是城里的有一套房子很有必要。今天给大家推荐的是崔总私人订制的="://www.lemeizhai.com/Picture.asp?PicClassID=88" target="_self">二层别墅设计,这套别墅非常现代结构采用框架结构,别墅一层空间大二层比较紧凑,这样的别墅非常适合小宅基的客户建造。
效果图:

别墅层数: 二层
别墅风格: 现代
占地面积:96㎡
开 间:10.8m
进 深:8.9m
建筑占地:10.8m×8.9m
建筑面积:188㎡
主体造价:25.0~30.0万
建筑结构:框架结构
效果图:


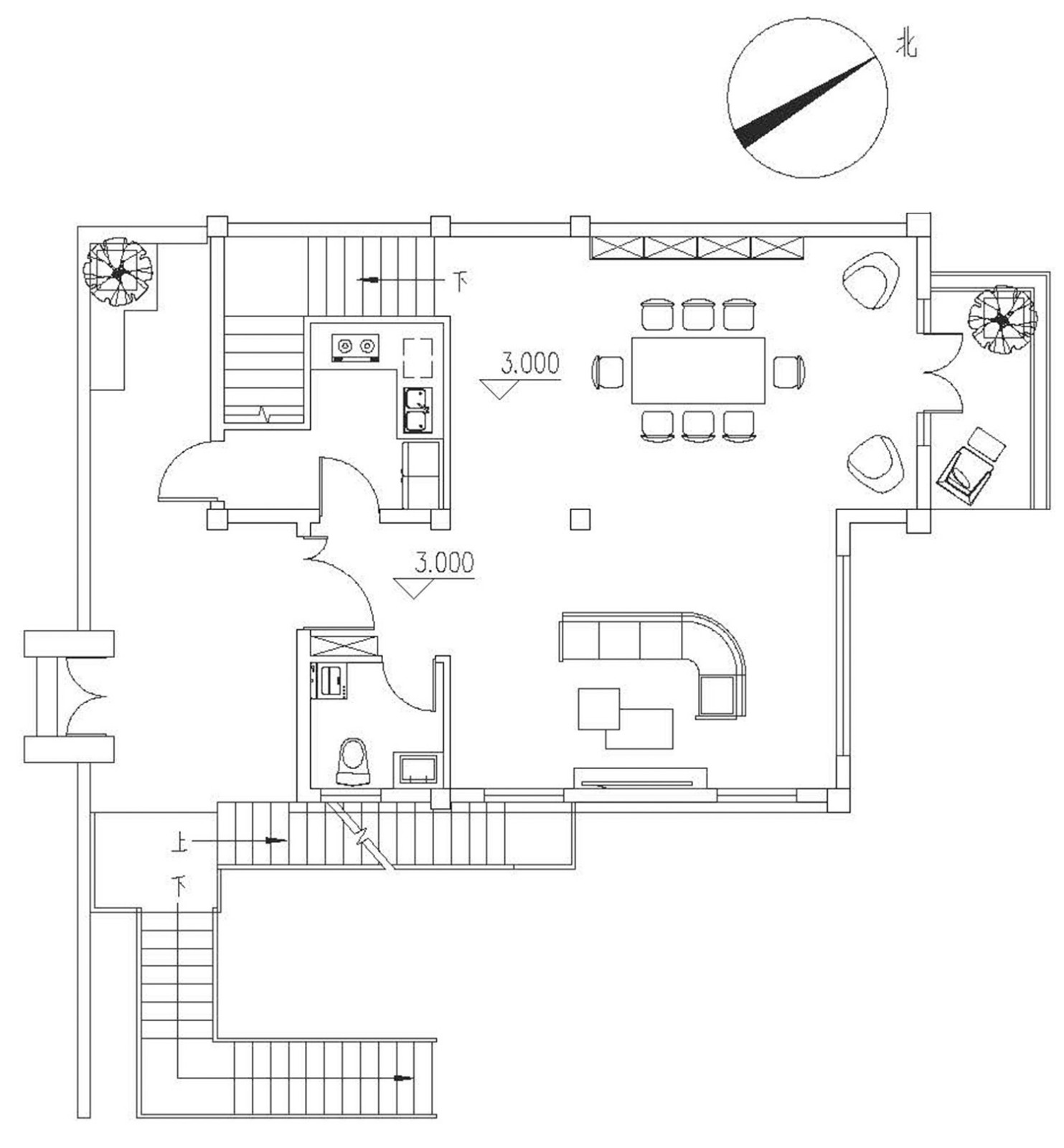
主体设计:

客厅、餐厅、厨房、卧室、公卫、阳台、露台。

。
转载请注明出自轩鼎自建房:://www.lemeizhai.com/