新式农村自建房兴起,传统的自建房已经不能满足现在的生活了,新式自建房结构强功能全,冬天保暖好私密性强隔音效果好,这就是为什么越来越多的人建造新式自建房的原因。今天给大家推荐的是李总私人订制的="://www.lemeizhai.com/Picture.asp?PicClassID=88" target="_self">二层别墅设计,这是一套紧凑型的现代风格的别墅,有良好的隐私防护性隔音效果好。
效果图:

别墅层数: 二层
别墅风格: 现代
占地面积:153㎡
开 间:15.7m
进 深:9.8m
建筑占地:15.7m×9.8m
建筑面积:215㎡
主体造价:27.0~32.0万
建筑结构:砖混结构
效果图:


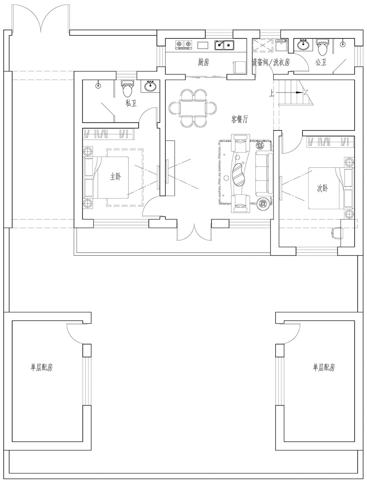
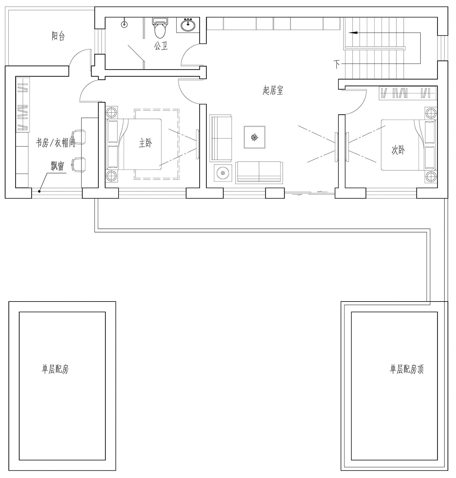
主体设计:

客厅、餐厅、厨房、卧室、公卫、阳台、露台。

。
转载请注明出自轩鼎自建房:://www.lemeizhai.com/