农村现在建二层小楼的越来越多,因为一层的平房已经不适合现在人们的需求了,尤其是多胎家庭孩子多的就很适合二层房子,好了那么进入今天的主题吧。今天给大家介绍的是一款="://www.lemeizhai.com/Picture.asp?PicClassID=97" target="_self">二层半双拼别墅设计,这套别墅符合规定非常适合和父母一起住,双方的生活一般不会被打扰,各过各的相互还有个照应。
效果图:


别墅层数: 三层
别墅风格: 现代
占地面积:268㎡
开 间:21.5m
进 深:12.5m
建筑占地:21.5m×12.5m
建筑面积:443㎡
主体造价:62.0~67.0万
建筑结构:砖混结构
效果图:


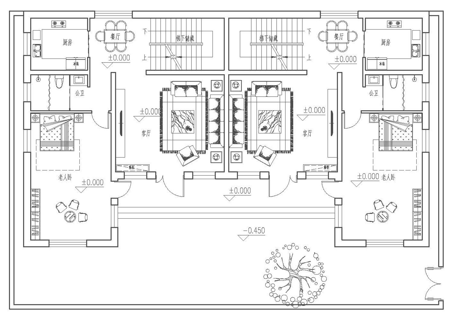
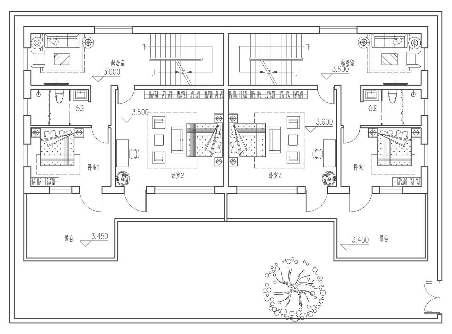
主体设计:

客厅、餐厅、厨房、卧室、公卫、阳台、露台。

。
转载请注明出自轩鼎自建房:://www.lemeizhai.com/