很多人提起农村都有刻板印象觉得农村落后穷条件差,其实的是以前的事了,我要说有些农村地区家家户户住别墅你可能不信,你别不信这都是真的,你上网搜搜福建别墅你就知道了。今天给大家推荐的是一款精美的="://www.lemeizhai.com/Picture.asp?PicClassID=88" target="_self">二层欧式别墅设计,这套房子非常耐看是浙江芦总私人订制款。
效果图:

别墅层数: 二层
别墅风格: 欧式
占地面积:89㎡
开 间:10.7m
进 深:8.4m
建筑占地:10.7m×8.4m
建筑面积:215.47㎡
主体造价:27.0~32.0万
建筑结构:框架结构
效果图:


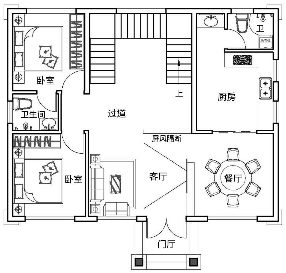
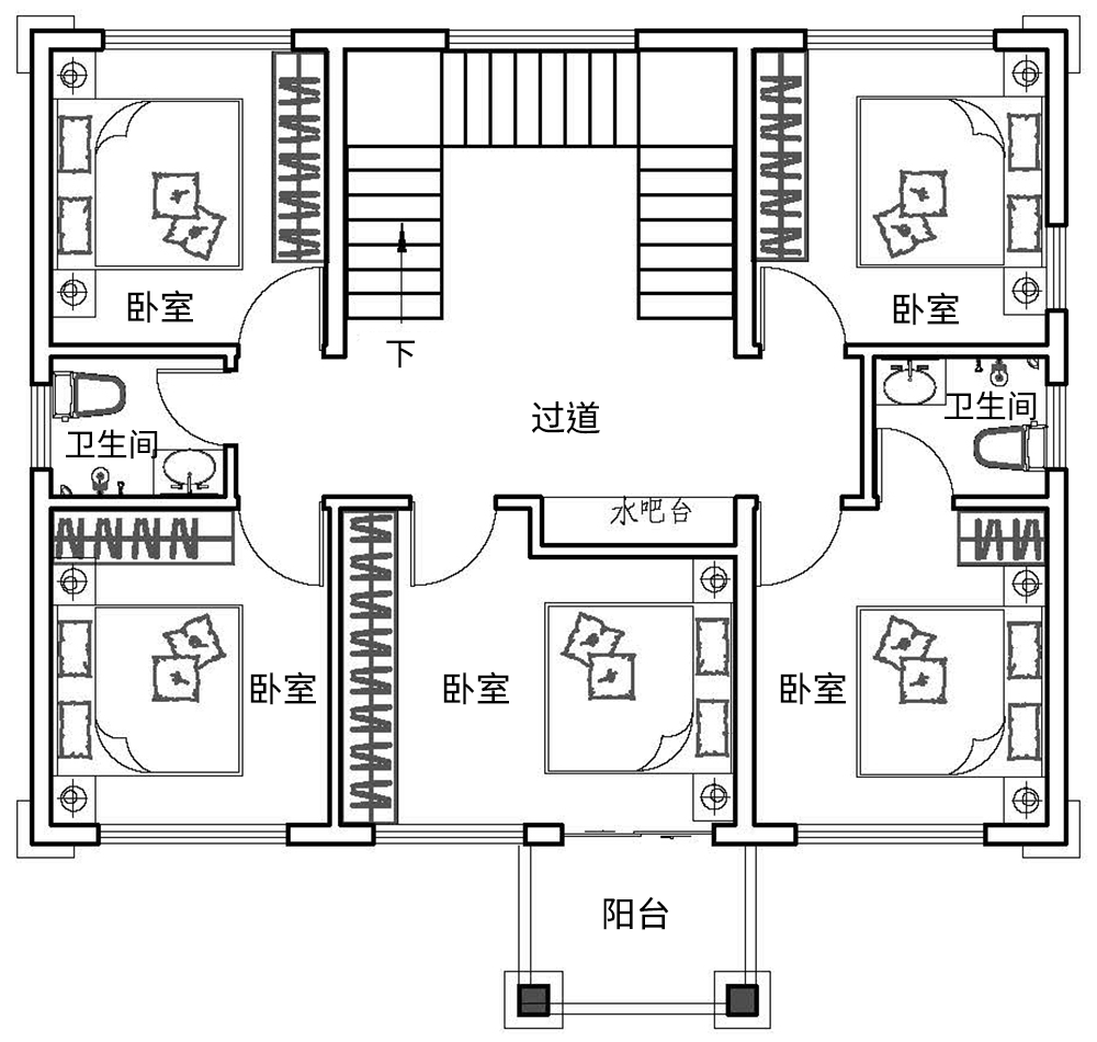
主体设计:

客厅、餐厅、厨房、卧室、公卫、阳台、露台。
。
转载请注明出自轩鼎自建房:://www.lemeizhai.com/