现在的自建别墅是越来越多但不是所有地方都适合建造是有场地限制的,大宅基的适合建别墅,不管是新中式还是现代的,想怎么建就怎么建只要符合国家规定。今天给大家推荐一款="://www.lemeizhai.com/Picture.asp?PicClassID=88" target="_self">现代二层别墅设计,这套别墅区域分明非常实用有供暖设施非常适合北方的朋友,这套别墅很对我的胃口。

效果图:


别墅层数: 二层
别墅风格: 现代
占地面积:481㎡
开 间:20.5m
进 深:23.5m
建筑占地:20.5m×23.5m
建筑面积:438㎡
主体造价:55.0~60.0万
建筑结构:框架结构
效果图:


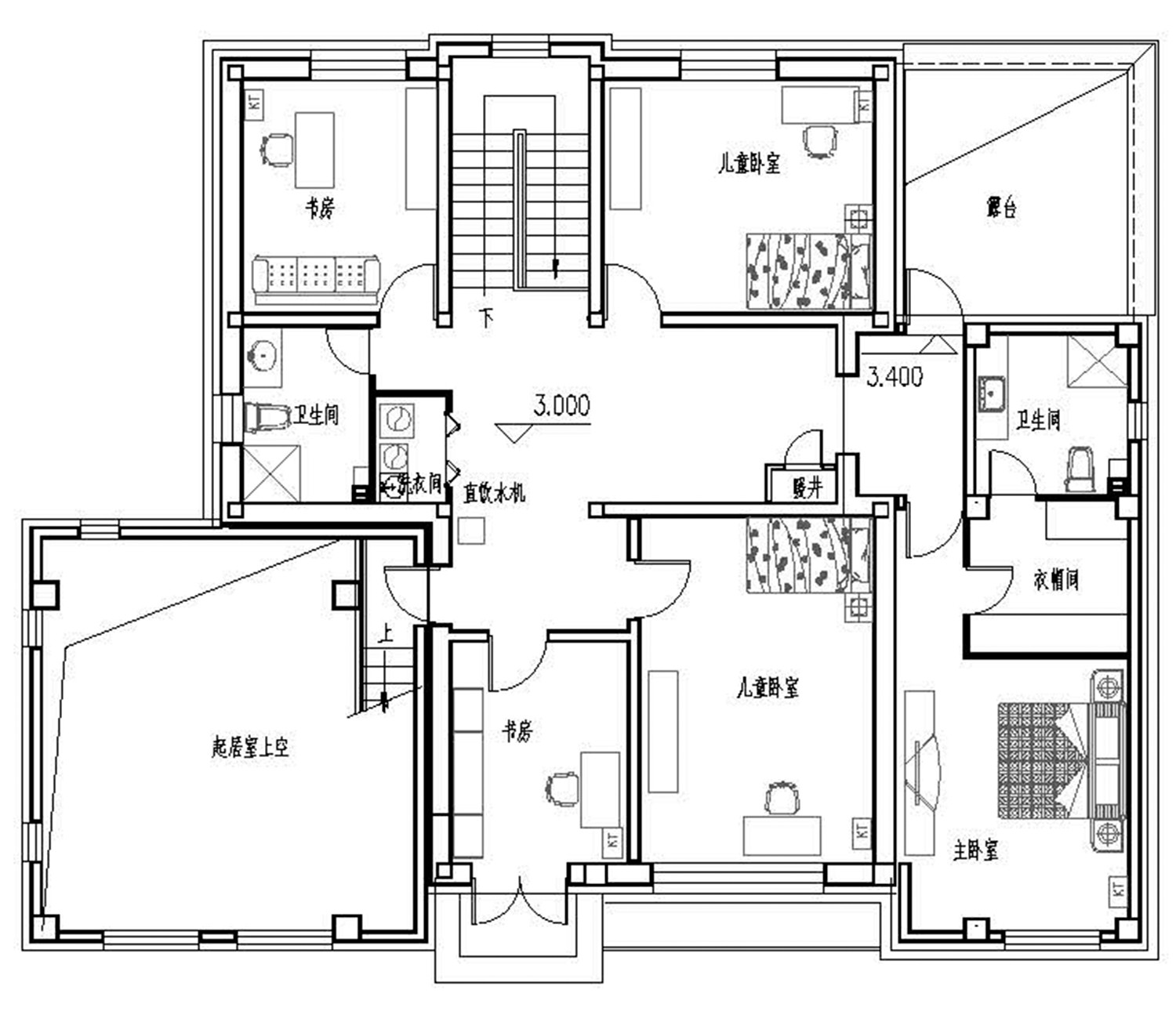
主体设计:

客厅、餐厅、厨房、卧室、公卫、阳台、露台。

。
转载请注明出自轩鼎自建房:://www.lemeizhai.com/