轩鼎小编今天给大家介绍一栋农村实拍二层别墅洋房,背靠青山,前庭后院,自然环境非常优美。家里建这样一栋房子,在外打工受累的时候,心里想想都是很美的。如下图所示,这栋青色文化石外墙的别墅,其貌不扬,看上去很普通,但这或许在人们外出的时候也更安全,更让人放心。

其实它的造型是很优美的,和周围环境搭配也很协调。在这里建的房子如果色彩非常鲜艳的话,反倒显得不协调。这栋别墅的面宽是12.5m ,进深11.2米,方方正正,是人们喜欢的样子。
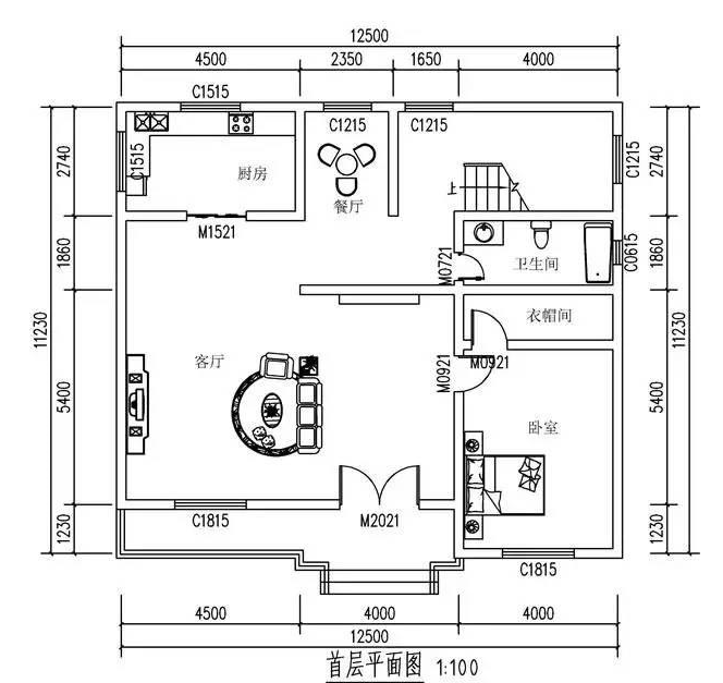
从一层平面图上我们可以看到,一层只有一间卧室,但是客厅非常大。这也给了人们自主改造和布置的机会。

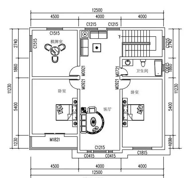
而二层也有两间卧室,以及客厅 和棋牌室。楼上楼下一共只有3间卧室,而客厅 也可以改造成一间书房 或别的功能用房。

这栋别墅房屋的格局给人感觉很显然就是主人不常在家住或只有老人在家常住,因此卧室不是很多,过年回家来简单收拾一下就好,收拾起来也比较方便。因为它的房间少。而且从房子的外观来看,它的密封性很好,仿佛要外出的时候,拿把锁把大门一锁就不用再操心什么了。








