有朋友问,农村建别墅几层的最合适?其实这要看当地的政策允不允许,我所知道的是某些地区是不能建超过三层的别墅,而且我认为二层的农村自建别墅适合绝大多数人,原因是农村地区的宅基地都不小,建二层很适合,三层就有点资源浪费了。今天给大家推荐一款欧式="://www.lemeizhai.com/Picture.asp?PicClassID=88" target="_self">农村二层别墅设计,农村人建别墅就选择这样的别墅。
效果图:

别墅层数: 二层
别墅风格: 欧式
占地面积:165㎡
开 间:14m
进 深:11.8m
建筑占地:14m×11.8m
建筑面积:297㎡
主体造价:39.0~44.0万
建筑结构:砖混结构
效果图:



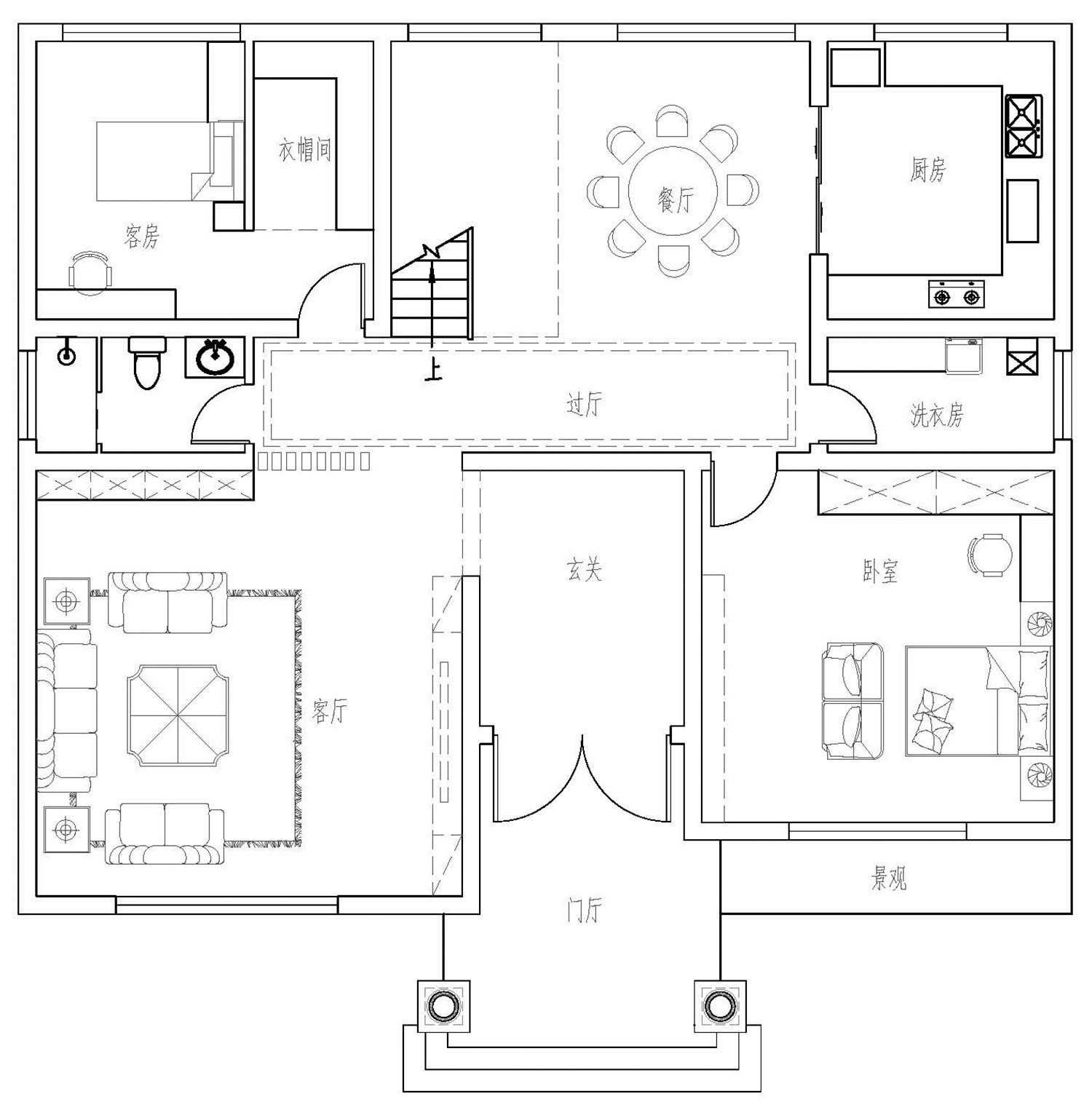
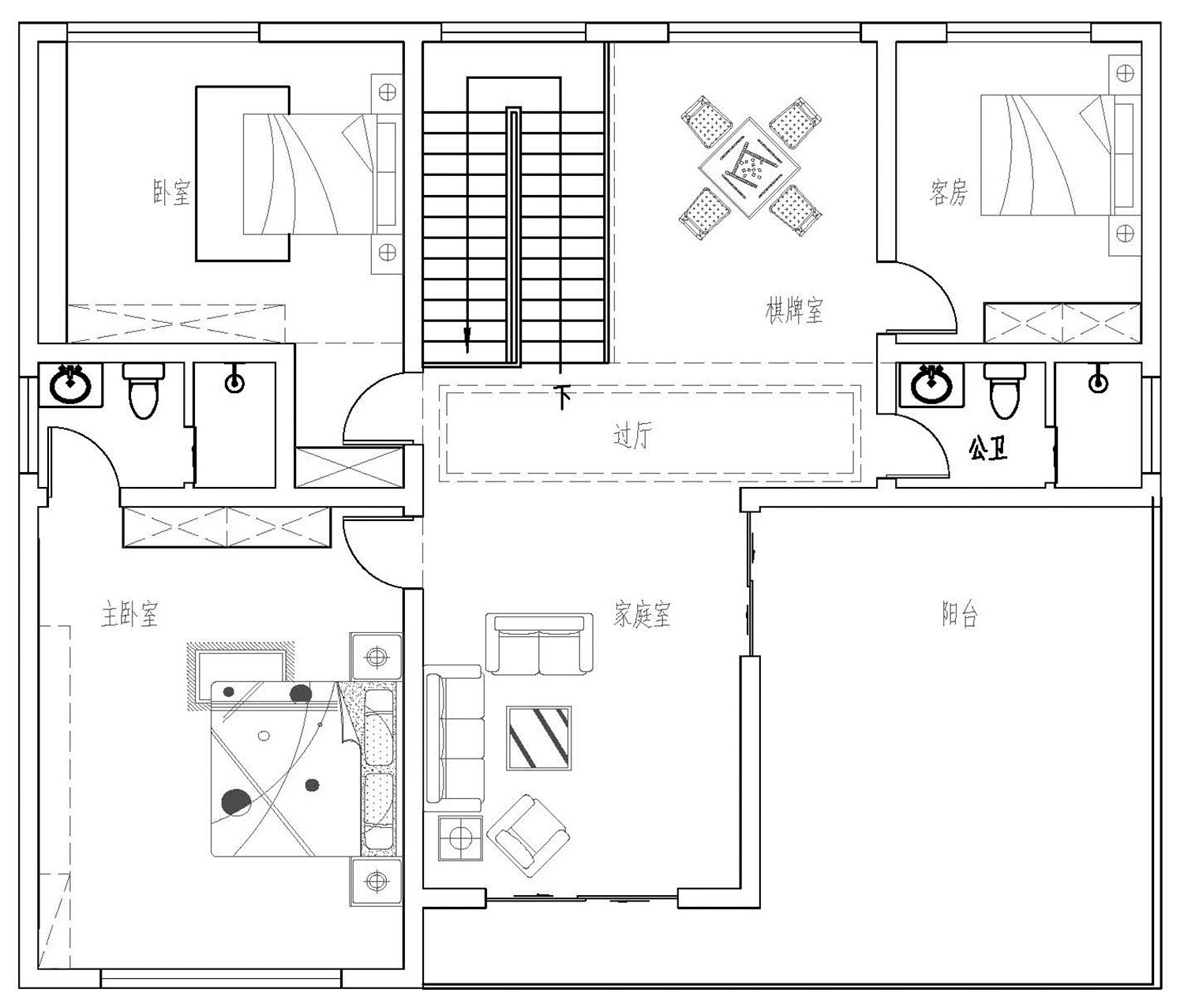
主体设计:

客厅、餐厅、厨房、卧室、公卫、阳台、露台。
。
转载请注明出自轩鼎自建房:://www.lemeizhai.com/