建小别墅的越来越多了,想建别墅就选择一款漂亮的欧式风格别墅,就比如今天这款="://www.lemeizhai.com/Picture.asp?PicClassID=88" target="_self">二层农村自建别墅,10.4m×8.7m造价(主体)不超过50万经济实惠,阳台露台都不缺还有个晾晒平台,外墙贴的是瓷砖非常精致漂亮。再说说内部布局,空间利用率非常好不拥挤,采光好而且适合老年人居住。
效果图:



别墅层数: 二层
别墅风格: 欧式
占地面积:90㎡
开 间:10.4m
进 深:8.7m
建筑占地:10.4m×8.7m
建筑面积:198㎡
主体造价:28.0~33.0万
建筑结构:砖混结构
效果图:



主体设计:

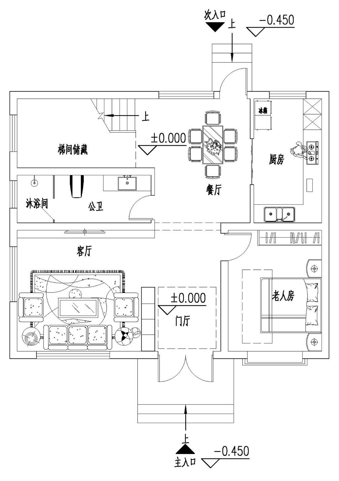
客厅、餐厅、厨房、卧室、公卫、阳台、露台。

。

转载请注明出自轩鼎自建房:://www.lemeizhai.com/