这样的别墅不用说在农村,即使在一线城市也是非常受大家的欢迎。现在农村基础建设搞得好了,道路硬化都不错,家家门前都会像这么干净,再住在这样美观实用的别墅里,呼吸着新鲜的空气,想去哪里开上车就去了,真正是小康的生活。真是羡慕不已呀。

再来看它的户型图,配有车库的设计,本层两个卧室之间隔着客厅,不会影响到家人的休息。客厅里设计了壁炉。主卧向阳,独立卫生间,老人住着非常合适。厨房连着柴火房,符合农村建房需求,做出来的饭菜那也是香喷喷的。洗衣间和储藏间放在楼梯后面,很好地利用了空间。

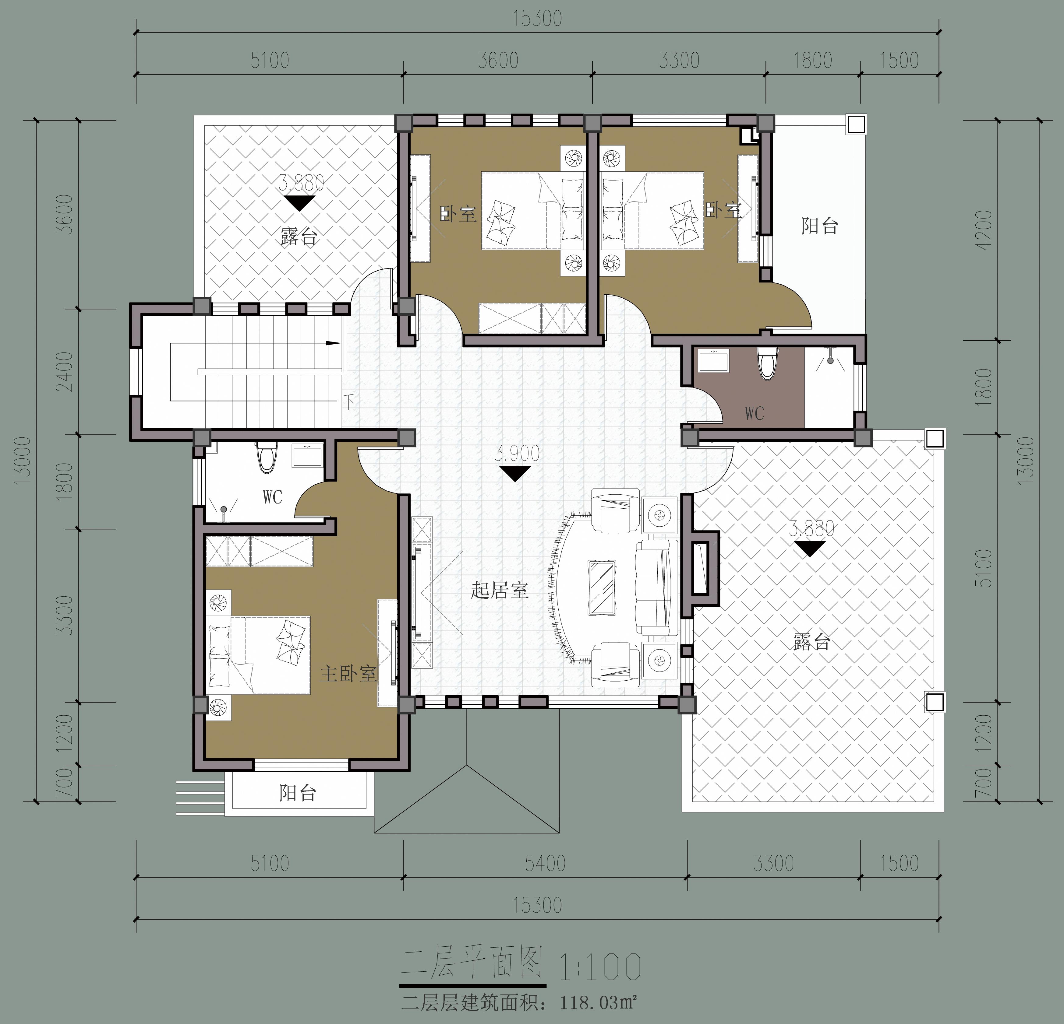
二层还是以居住为主的,三间卧室和一间大起居室,壁炉的烟囱从沙发后面通过,所以坐沙发上休息,在冬天也是很暖和的。每个房间都连着阳台,室内通风好。车库顶上的大露台,可以养花,喝茶休闲,夏天还可以种点葡萄等植物,瞭望远方,乡村美景尽收眼底。
今天这栋农村自建二层别墅,在农村来说并不算太大,但是它的外观气质很好,空间利用也很到位,小编是非常喜欢这样的二层别墅,以及它的配色设计,大家喜欢吗?








