漂亮的房子一定是好房子,农村建小别墅的越来越多,如今在农村不建一栋别墅都说不过去,好房子看起来好看住着也舒心。今天给大家推荐山东郭总私人订制的="://www.lemeizhai.com/Picture.asp?PicClassID=88" target="_self">二层别墅设计,别墅清秀漂亮是一套子女合建的自建别墅,自己住、儿子住、孙子住,这样的房子不怕家里人口多,都住的开。
效果图:

别墅层数: 二层
别墅风格: 欧式
占地面积:276㎡
开 间:26.8m
进 深:13.2m
建筑占地:26.8m×13.2m
建筑面积:517㎡
主体造价:57.0~62.0万
建筑结构:砖混结构
效果图:


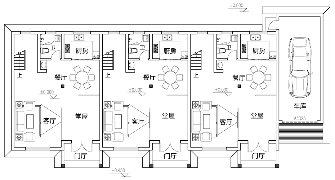
主体设计:。

客厅、餐厅、厨房、卧室、公卫、阳台、露台。

。
转载请注明出自轩鼎自建房:://www.lemeizhai.com/