家里有个院子,院子有个两层别墅,有辆车,应该是现在比较理想的生活。这栋别墅的样子在农村是比较经典的,看上去也比较结实。蓝色的屋顶,大理石的外立面,二层小楼和阳台,可以说是现在农村建房的标配。

此款设计布局对称式的,从大门进入后,客厅两边是各有一间主卧,不同的是,一间主卧带卫生间,一间带有备用房间,但两间主卧包括客厅都是向阳的。后部中间是餐厅,对称的两间是厨房,可能设计师想要两间厨房做饭的风格不同吧。然后就是公用卫生间和储藏间,一点没有浪费的地方。

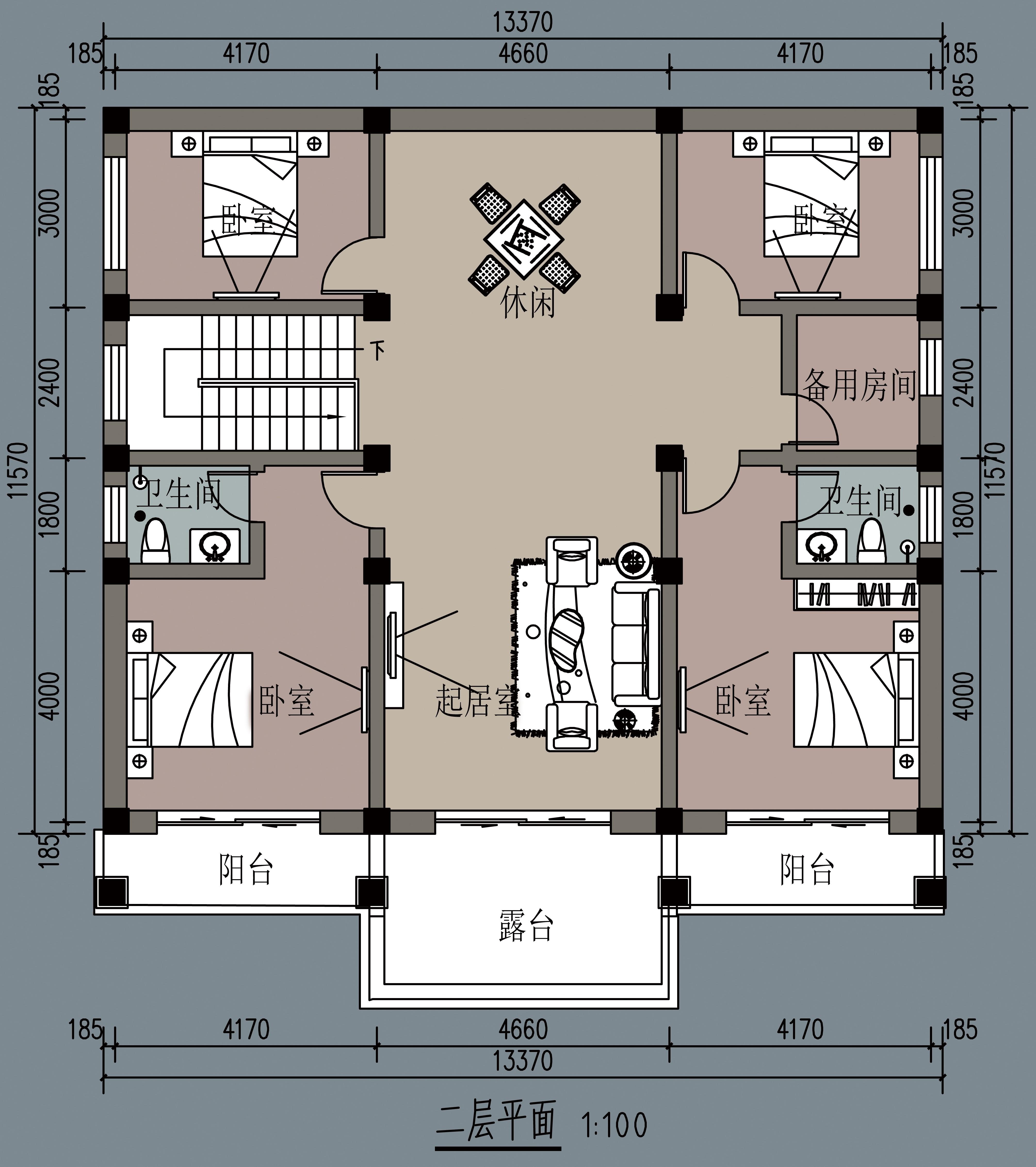
二层平面图上,可以看见,两间向阳带卫生间的主卧,两间次卧,都是呈轴对称图形分布。起居室连着露台,与休闲区相对,放下一张乒乓球台完全没问题。这一层有四间卧室,加上一层的两间,一共有六间卧室,而且,这一层还有备用房间,放点什么都可以。

今天介绍的这栋农村二层别墅,可以说把这么大面积的房子所能做的布局设计发挥到了极致。一个院子,一辆车,养一个小宠物,一套别墅 ,过着舒适精致的生活。你喜欢吗?