从这座二层农村别墅的效果图来看,这座房子的造型结实中带着土气,锗红色的屋顶瓦、土黄色的外墙、突出的外窗框以及暗红色的阳台栏杆都使它不会给人眼前一亮的感觉,所以也不会给人留下深刻印象并被某些人惦记。

别墅效果图
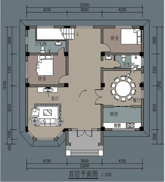
从一层平面来看,这座别墅占地才12米*12米,方正的户型,风水一定不会错。进门之后,这次设计师把厨房和客厅都设计在了前边靠窗的位置,这样做的好处是客厅和厨房都很亮堂,而后方的两个卧室都能紧邻卫生间。

一层平面图
从二层平面图来看,一层挑空的客厅的顶在楼上,这样显得客厅非常大气,明亮,整个房间也显得十分宽敞。二楼有三个卧室、衣帽间以及阳台。上下一共五个卧室,整个设计简单实用。

二层平面图
这座12*12二层房屋设计图纸,整体看上去有点土气,但那只是外表,其实用性还是很强的。咱老百姓住的房子,不就图的是朴素实用嘛,而且这样子在外打工时也能更放心点