有建房的朋友私信小编,自己已经看了很多="://www.lemeizhai.com/" target="_self" title="房屋设计">房屋设计户型图纸,却都不是太满意,因为自己想要多一点的卧室,一是因为家里的人口本身就比较多;二是考虑到以后子女开枝散叶,家里人口会更多;三是考虑到过年过节时,亲戚朋友方便在家留宿。家人喜欢中式四合院的设计,轩鼎小编给这位建房朋友找了一套白墙青瓦的外观简约大气、宽敞的内庭院舒适程度拉满,同时它的内部布局也是很实用。

一层客厅区域面宽近9米,搭配全景落地窗,室内宽敞、明亮,更显大气。东南侧设1间卧室,作为老人房很合适,不仅采光通风性较好,而且免去了老人上下爬楼梯的麻烦。茶室、棋牌室也全都有,家人在家也能喝喝茶、打打牌,享受惬意的居家生活。

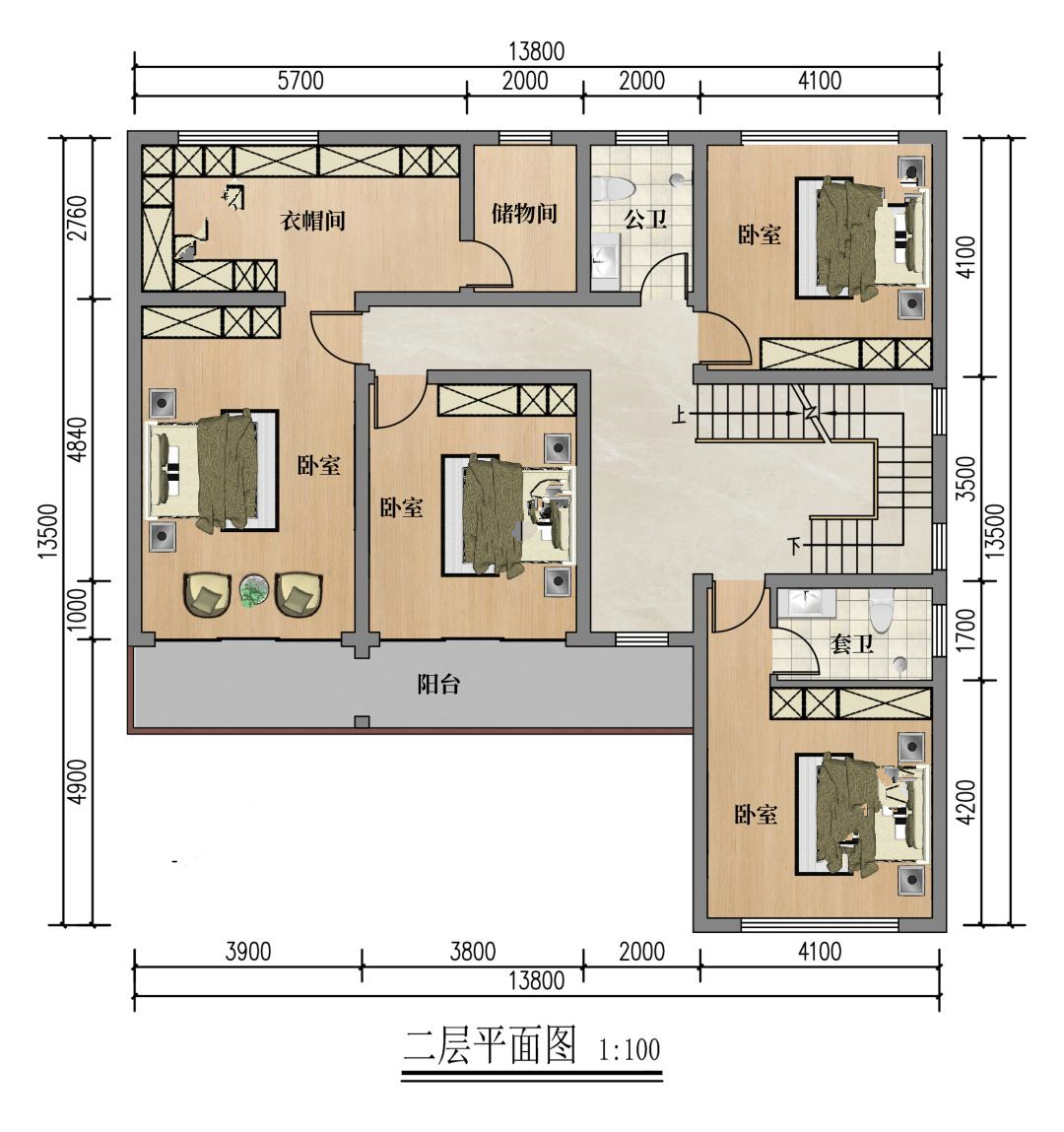
二层主要作为家人的生活居住区域,设有4间卧室,其中西南侧的主卧不仅面积宽敞,还带有衣帽间、储物间,且直接连通阳台区域,居住舒适度更佳。东南侧的卧室带有独立卫生间,家人住着更舒心。

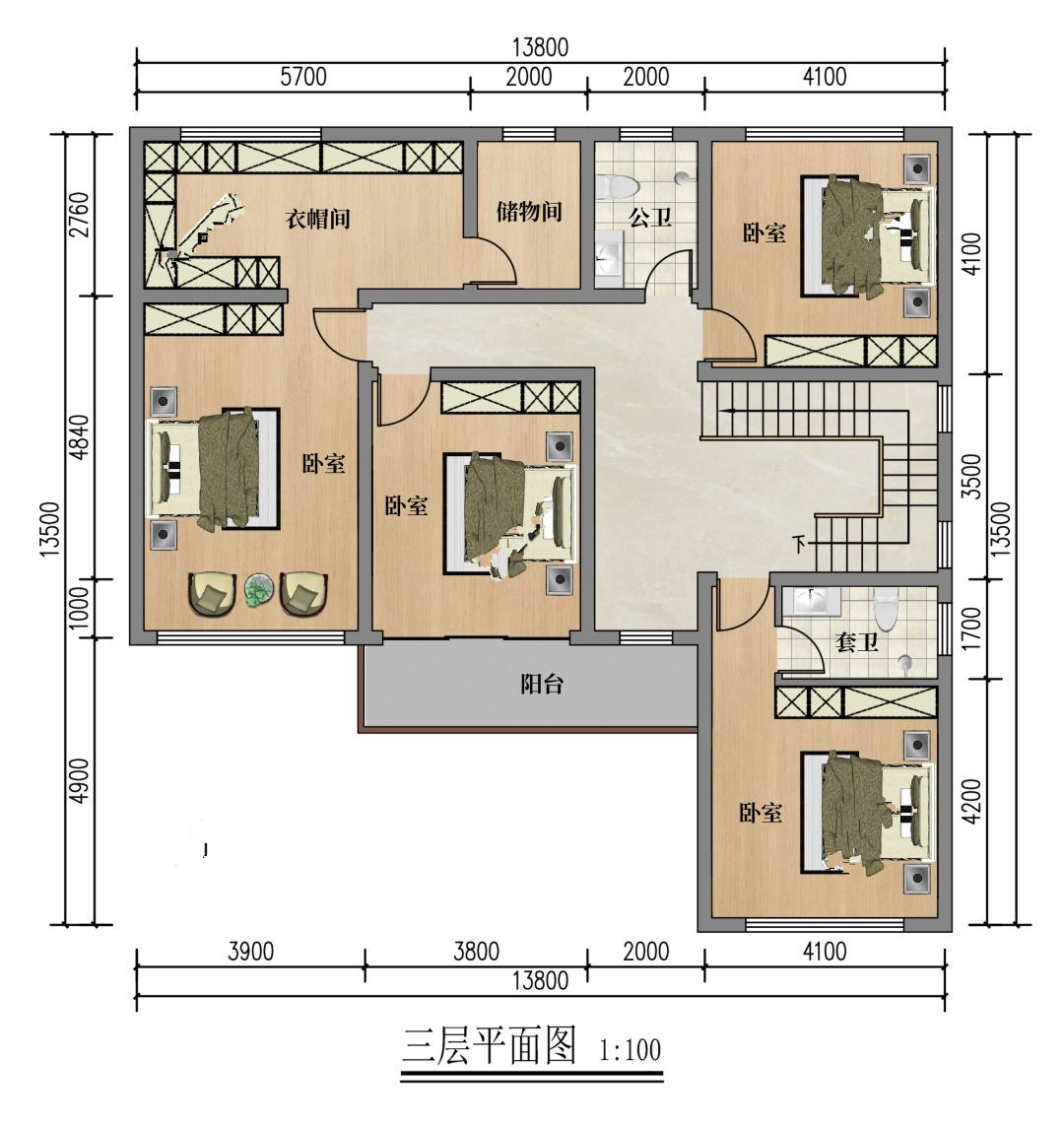
三层延续二层的布局,设有4间卧室,家里人再多也全都能住下。

这样一款新农村中式三层合院别墅设计图,建在村里,妥妥的羡慕。感谢阅读,更多房屋设计图大全,关注轩鼎自建房。