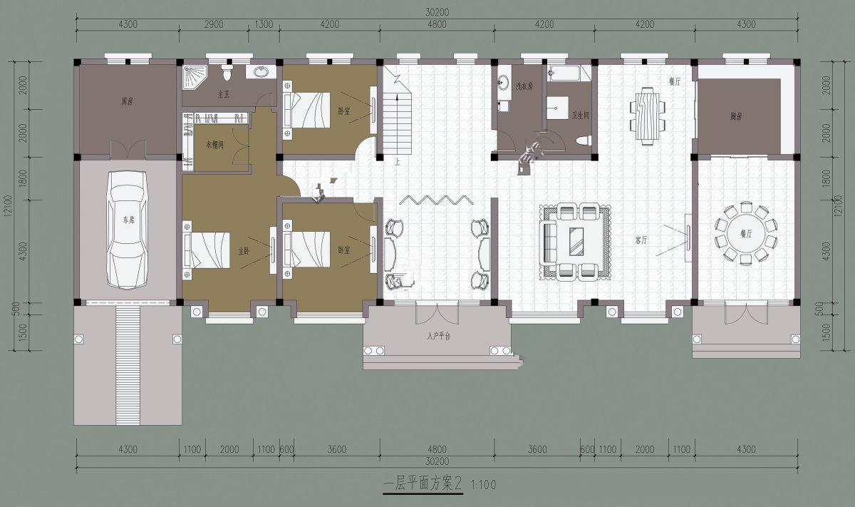
今天要给大家介绍的一款农村两层豪华别墅设计图,即使过去有钱人家的公馆可能也比不上。这栋别墅占地长30.2米,进深12.1米,农村宅基地稍大一点的人家都能盖。但是,老远一看这院门,这门面,这车库,就足够让人震撼。
入户的门廊就很棒,很大气。进入室内,左手一主两次三个大卧室,尤其是主卧室,真宽敞呢,长度超过了10米,从床经过衣帽间才能到达卫生间,床和衣帽间之前完全可以隔出一间小屋子了。这对城市租房族来说,真是太浪费了。车库后面是一大间库房,也可做个房间。入门右手是客厅,宽达8.4米,真富裕呀。厨房之外,餐厅就有两个,平时吃饭和过年一家人吃饭的地方都有了。

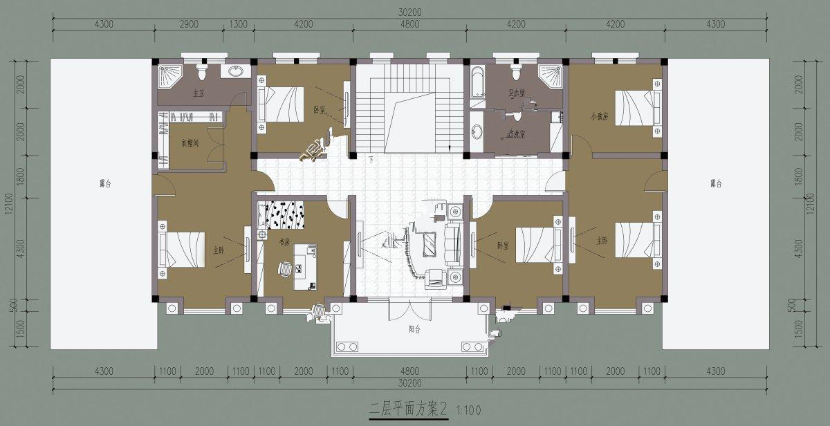
二层有5个卧室,包括一个小孩房。小孩房和一个主卧连在一起是很好的,这样小孩在特定的阶段,既能独立睡觉,又离父母不远,孩子有安全感。除去书房外,其它 几个卧室,小编以为可以改成其它功能用房,这么大的别墅全是卧室,真是与它的大气风格太不匹配了。两边两个大露台给人感觉很稳重,不错。
总的来说,如果有这么一个大宅院,人生也算是很成功了。