这几十年中国可以说变化飞速,农村的变化也一样,美丽乡村的建设让乡村越来越美丽,有的村子几乎都是小别墅,浙江福建这些地方不用说全国闻名!农村建别墅还是新中式的适合我们中国人,不仅漂亮还有传统的韵味还是很不错的。今天给大家推荐的是山东崔总私人订制的二层="://www.lemeizhai.com/search.asp?SearchType=Software&imageField.x=17&imageField.y=23&SearchKey=%D0%C2%D6%D0%CA%BD" target="_self">新中式农村自建别墅,这套别墅蓝屋顶和文化石是这套别墅的点睛之笔。
效果图:

别墅层数: 二层
别墅风格: 中式
占地面积:226㎡
开 间:17.3m
进 深:13.1m
建筑占地:17.3m×13.1m
建筑面积:348㎡
主体造价:50.6~55.6万
建筑结构:砖混结构
效果图:



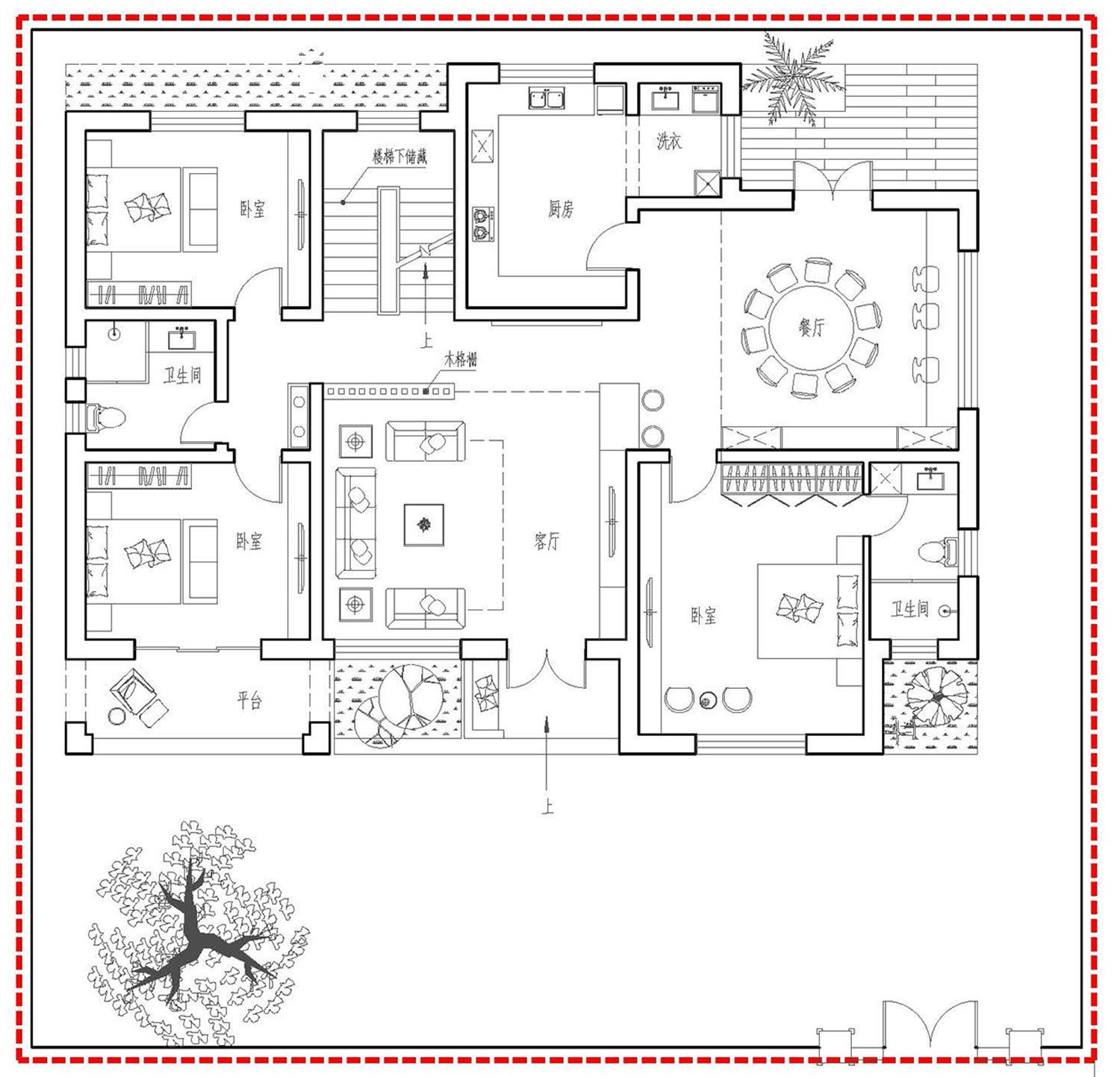
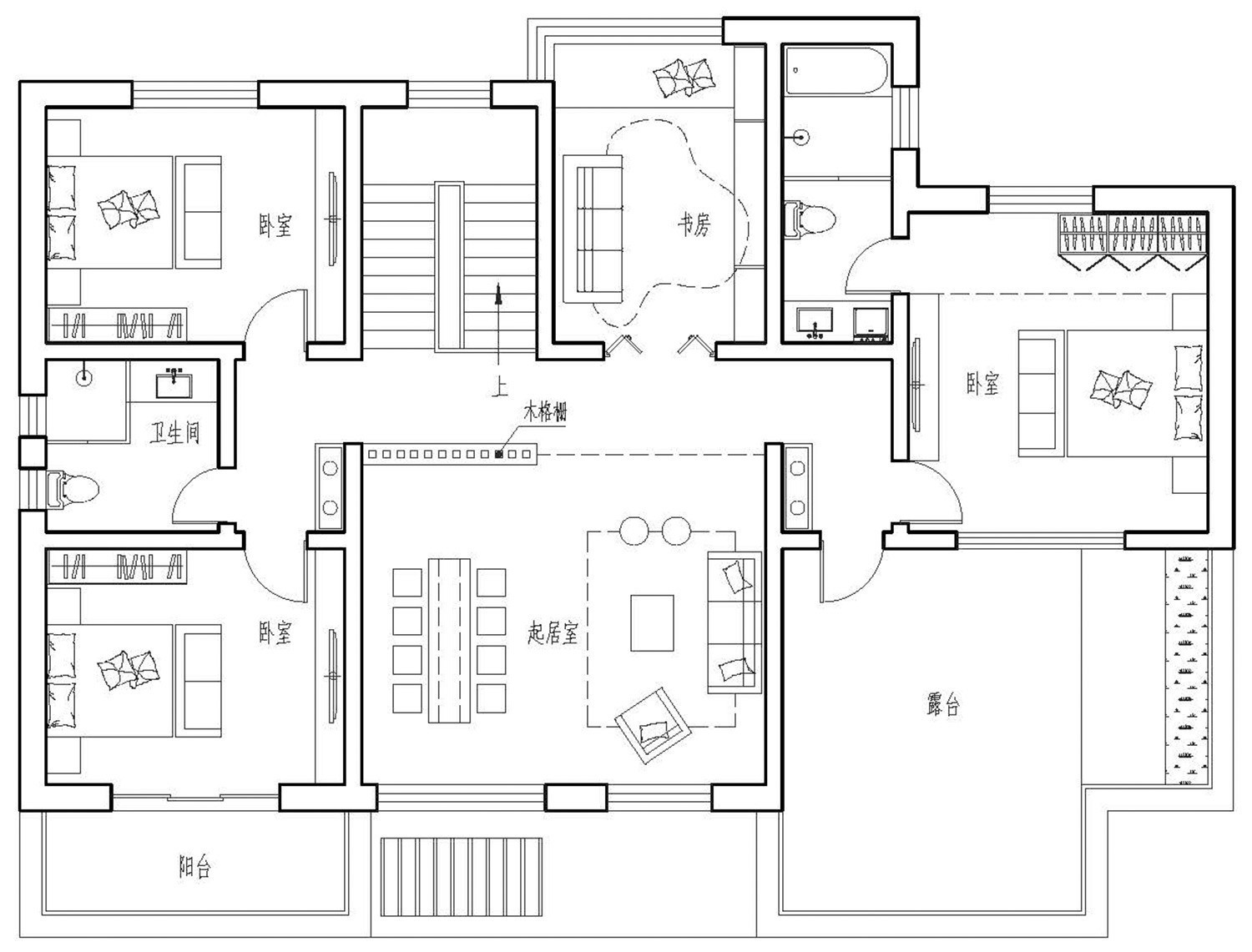
主体设计:

客厅、餐厅、厨房、卧室、公卫、阳台、露台。

。
转载请注明出自轩鼎自建房:://www.lemeizhai.com/