如果您正在打算在农村老家建一栋漂亮的房子,不妨看看轩鼎小编推荐的这款,说实话,现在可选择的房屋设计图纸很多,各式各样的风格,但我们发现到最后,总和自己的想法有所出入,不适合。轩鼎小编推荐的这一栋是户型方正的三层自建别墅小楼房屋设计图纸。户型非常方正,没有缺角,而方方正正的外形非常的符合我们农村 心中对房子的印象,和家人的意见也可以做到统一。如果您的尺寸在12*12左右的话,这套房屋图纸还设计了地下室,可根据自己的意愿来拓展地下活动空间,不妨瞧瞧。

从一层平面来看,进门后客厅设计空间做到了非常宽敞的区域,除去餐厅、厨房外,最主要的就是带有独立卫生间的老人房,另外还有一个客用卫生间,不仅方便了客人的居住,最重要的是方便老人日常的生活。

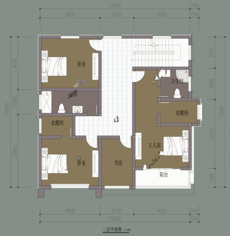
二楼主卧带卫生间、衣帽间,还毗邻阳台。另两个次卧室也都很宽敞,一个还带有衣帽间。中间的一个卫生间足够两个次卧使用。单独为孩子设计了书房,为他们提供安静的学习氛围。

三楼的大客厅,小编非常的喜欢,把这个区域可以改造成放映室或健身房也是相当不错的,有娱乐活动观影的地方。当然,这栋小楼还有地下空间。自己的房子,想怎么利用都可以。


轩鼎小编推荐的这款设计,还可以吧。