您好,欢迎访问轩鼎房屋图纸网,轩鼎建筑为您提供新农村房屋设计图、别墅设计图纸以及别墅定制设计与咨询服务。
 
 
  热门搜索:自建房 别墅设计 房屋设计图   
网站首页 图纸大全 定制设计 作品展示 建房图文 联系我们
一层房屋图纸
二层房屋图纸
三层房屋图纸
四层以上图纸
双拼房屋图纸
其他建筑图纸
 
 
 您的位置:首页 ->> 建房图文 ->> 13*12米现代二层别墅房屋设计图(现代时尚农村二层房屋设计图)
 
 

13*12米现代二层别墅房屋设计图(现代时尚农村二层房屋设计图)

发布时间:2022/12/5 13:17:50 点击数: 1808次 

农村自建房中,大家喜欢坡屋顶还是平屋顶打的造型呢?其实各有各的优点,如坡屋顶的设计具有层次感,立体感,而且不易积水,防水性能好。小编今日推荐一款13*12米现代二层别墅房屋设计图,最主要的是这个款造型30万就可以完成。

现代二层别墅.jpg

一层套卫设计卧室作为老人房,方便老人的起居生活。6米宽大车库足够您停放您的爱车,让您的爱车不再遭受日晒风吹。大落地窗设计使室内整体的采光通风性较好。

一层平面图.png

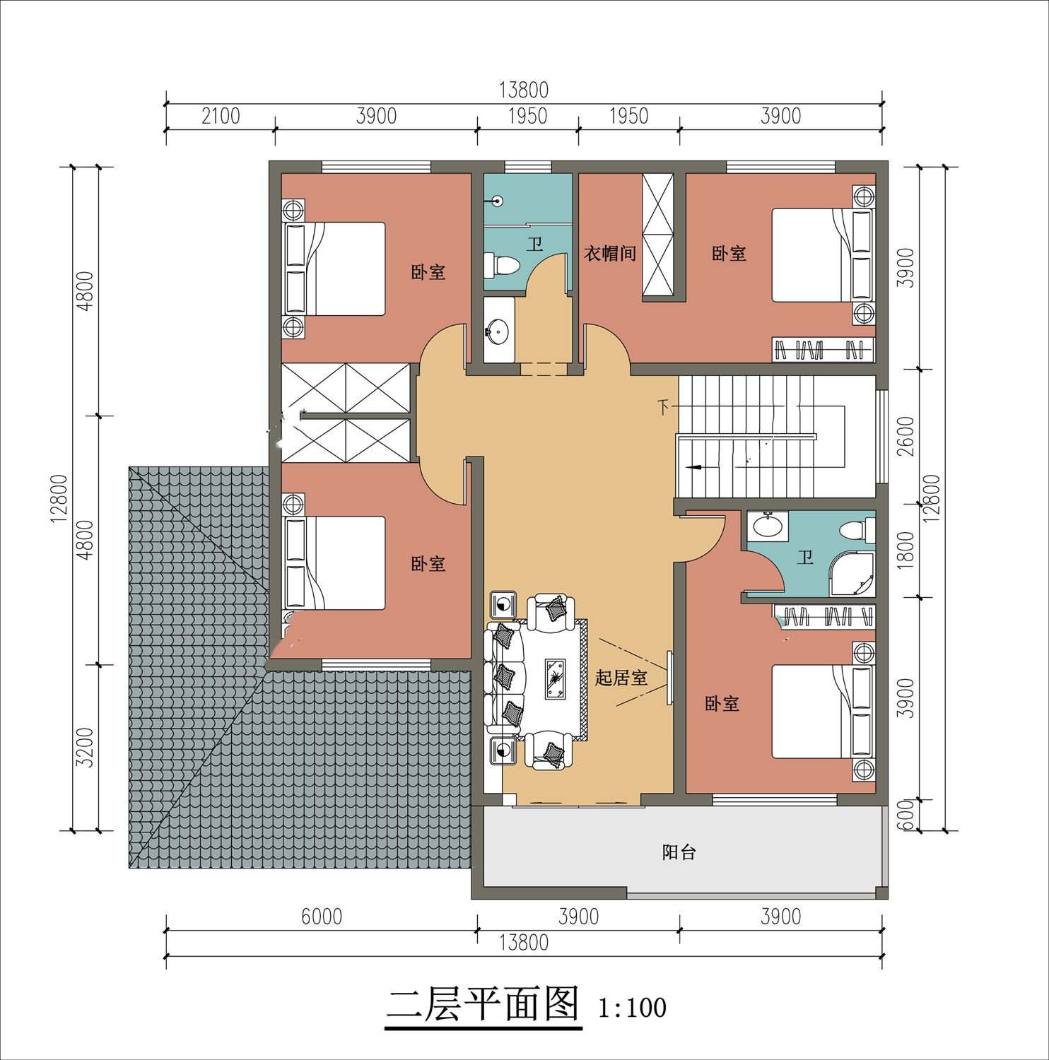
二层的起居室搭配大阳台提升您的居住体验感,让您在家里也能享受到品质生活。

二层平面图.png

 
· 农村自建房瓷砖如何挑选(自建房...
· 回老家盖一座别墅,和家人住在一...
· 农村自建房卫生间布局设计(农村...
· 欧式风格的别墅是现在人们最喜欢...
· 有车一族的福音两款有车库的二层...
· 板楼和塔楼应该怎么选 (塔楼与板...
· 孩子喜绝对喜欢的农村二层自建别...
· 十套别墅院子设计分享(2022农村...
  关于我们 网站事务 帮助中心
客服热线:400-079-6579
客服QQ:10928711 10928755 10928799
地址:山东省潍坊财富大厦1801
 

预定须知
顾客必读
配送方式

 


Copyright 2016 www.lemeizhai.com All Rights Reserved ICP备案序号:鲁ICP备2026012448号-1
轩鼎房屋图纸 电 话:0536-3385581 3385582 传 真:0536-3385581 地 址:山东省潍坊财富大厦1801


keywords:房屋设计图 房屋设计图 农村房屋设计图 农村房屋设计图 建房图文