您好,欢迎访问轩鼎房屋图纸网,轩鼎建筑为您提供新农村房屋设计图、别墅设计图纸以及别墅定制设计与咨询服务。
 
 
  热门搜索:自建房 别墅设计 房屋设计图   
网站首页 图纸大全 定制设计 作品展示 建房图文 联系我们
一层房屋图纸
二层房屋图纸
三层房屋图纸
四层以上图纸
双拼房屋图纸
其他建筑图纸
 
 
 您的位置:首页 ->> 建房图文 ->> 占地90㎡两层小别墅设计图(附农村小别墅设计图及效果图)
 
 

占地90㎡两层小别墅设计图(附农村小别墅设计图及效果图)

发布时间:2022/12/7 16:09:07 点击数: 3050次 

占地90平如何设计?两边还有邻居,这就是非常令人头疼的一件事,不妨看看这套占地90㎡两层小别墅设计图外观整体采用灰色色调,尽显沉稳大气,内部设4室 2厅 3卫 1厨 1客厅 1衣帽间 1阁楼层。

两层房屋图纸.jpg

一楼进门便是客厅的设计,与餐厅、厨房形成一字型排列,家人沟通更加方便,营造快乐热闹的家庭氛围,一间朝南的卧室,方便老人居住,舒适便捷。

一层平面图.jpg

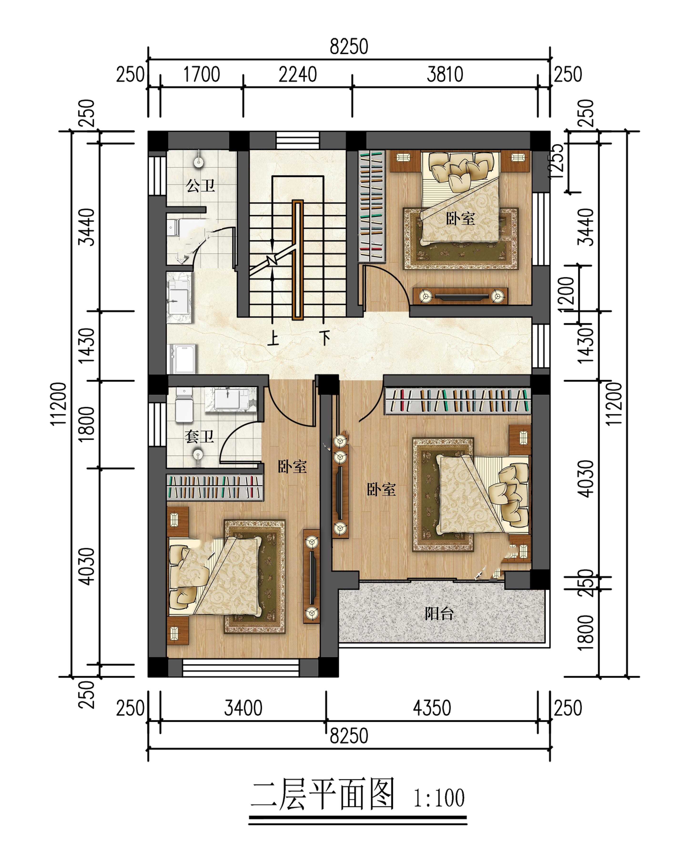
二楼布局非常的紧凑但不浪费,一共三间卧室两间卫生间的设计,提升房子的接待能力,满足一家人的居住需求。

二层平面图.jpg

以上就是轩鼎小编分享的占地90㎡两层小别墅设计图,感谢阅读。

 
· 二层田园风格别墅,你一定特别喜...
· 退休后何不回老家建一栋经济舒适...
· 最全家庭收纳整理技巧分享(家庭...
· 湖南最牛的别墅就是它啊!
· 经济适用的农村别墅设计,外观靓...
· 2023年家庭装修注意事项及细节(...
· 2019年就建这款别墅,
· 农村自建房大家经常纠结平屋顶还...
  关于我们 网站事务 帮助中心
客服热线:400-079-6579
客服QQ:10928711 10928755 10928799
地址:山东省潍坊财富大厦1801
 

预定须知
顾客必读
配送方式

 


Copyright 2016 www.lemeizhai.com All Rights Reserved ICP备案序号:鲁ICP备2026012448号-1
轩鼎房屋图纸 电 话:0536-3385581 3385582 传 真:0536-3385581 地 址:山东省潍坊财富大厦1801


keywords:房屋设计图 房屋设计图 农村房屋设计图 农村房屋设计图 建房图文