如何设计小面宽的别墅呢?因左右都有邻居,无法开窗,是很多业主苦恼的问题,,那怎样设计才能让宅地基最大化利用起来。

小编今日推荐一款适合小面宽,左右有邻居的户型设计图,并且巧妙的解决了室内的采光、通风问题,如果您家也是这样的问题,那就一起看看吧。

入户是庭院的设计,做了前后庭院,缓解压抑空间感,前院用来栽花,养花,后院放农具等杂物,保持整洁。进入室内客厅、餐厨区、内庭院、卧室。采光、通风效率都比较的不错,内庭院不仅解决了餐厨区采光、通风问题,还划分了动静区,做到互不打扰。一楼同样是一间卧室,让老人的居住更加的便捷。

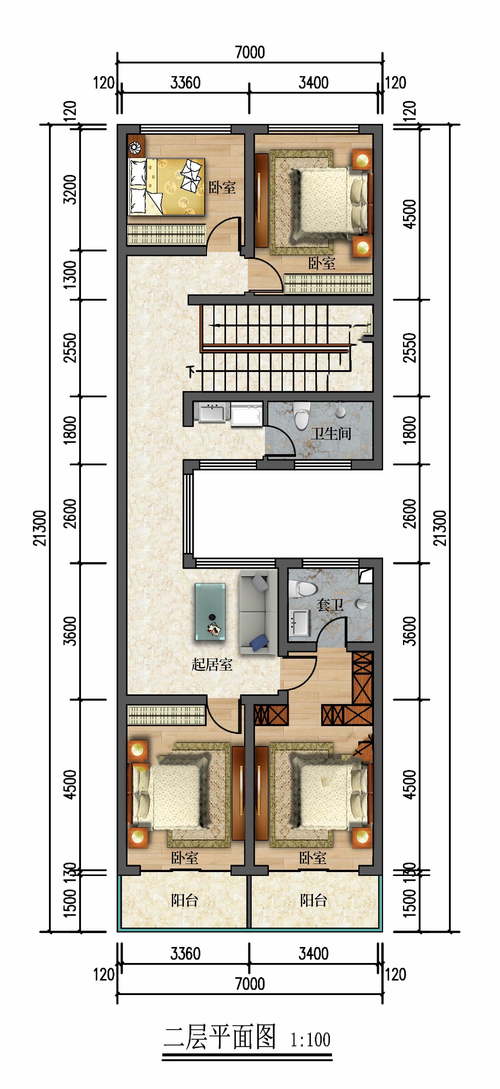
二楼4间卧室,以居住为主,南面两间卧室均带阳台,站在阳台不仅享受着阳光的沐浴,还能观看风景,美哉!南卧的主卧做套卫设计,即使狭窄的空间内也有很好的居住体验。

以上就是轩鼎小编分享的小面宽如何进行房屋设计全部内容,感谢大家阅读。