农村建别墅不管什么风格适合我们就行,农村建别墅田园风格的就很合适,也符合农村的环境。今天小编给大家推荐一款符合农村环境的="://www.lemeizhai.com/Picture.asp?PicClassID=88" target="_self">二层农村自建别墅,外观时尚还有点欧式建筑和美式建筑的影子,还有个小露台,建筑面积:326㎡,主体造价:51.4~56.4万,价格还是不错的。
效果图:


别墅层数: 二层
别墅风格: 欧式
占地面积:196㎡
开 间:15.1m
进 深:13m
建筑占地:15.1m×13m
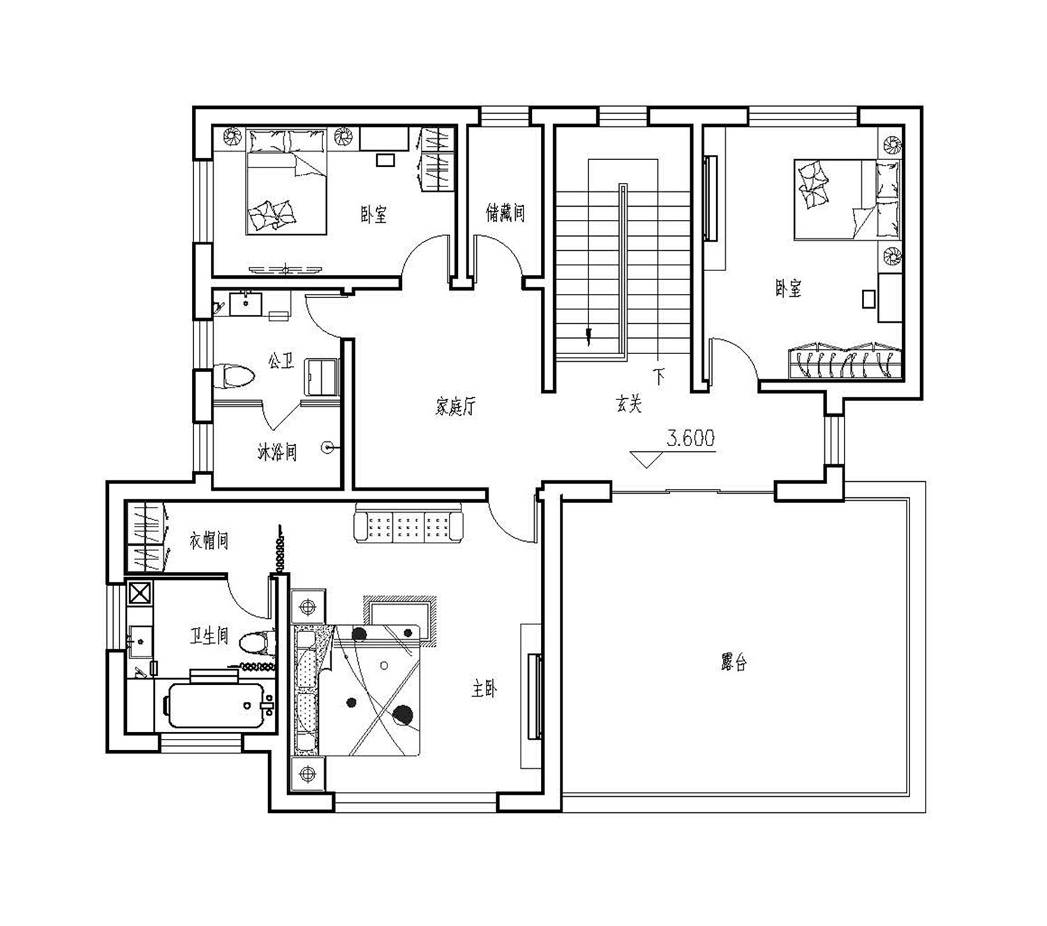
建筑面积:326㎡
主体造价:51.4~56.4万
建筑结构:砖混结构
效果图:


主体设计:

客厅、餐厅、厨房、卧室、公卫、阳台、露台。
。

转载请注明出自轩鼎自建房:://www.lemeizhai.com/