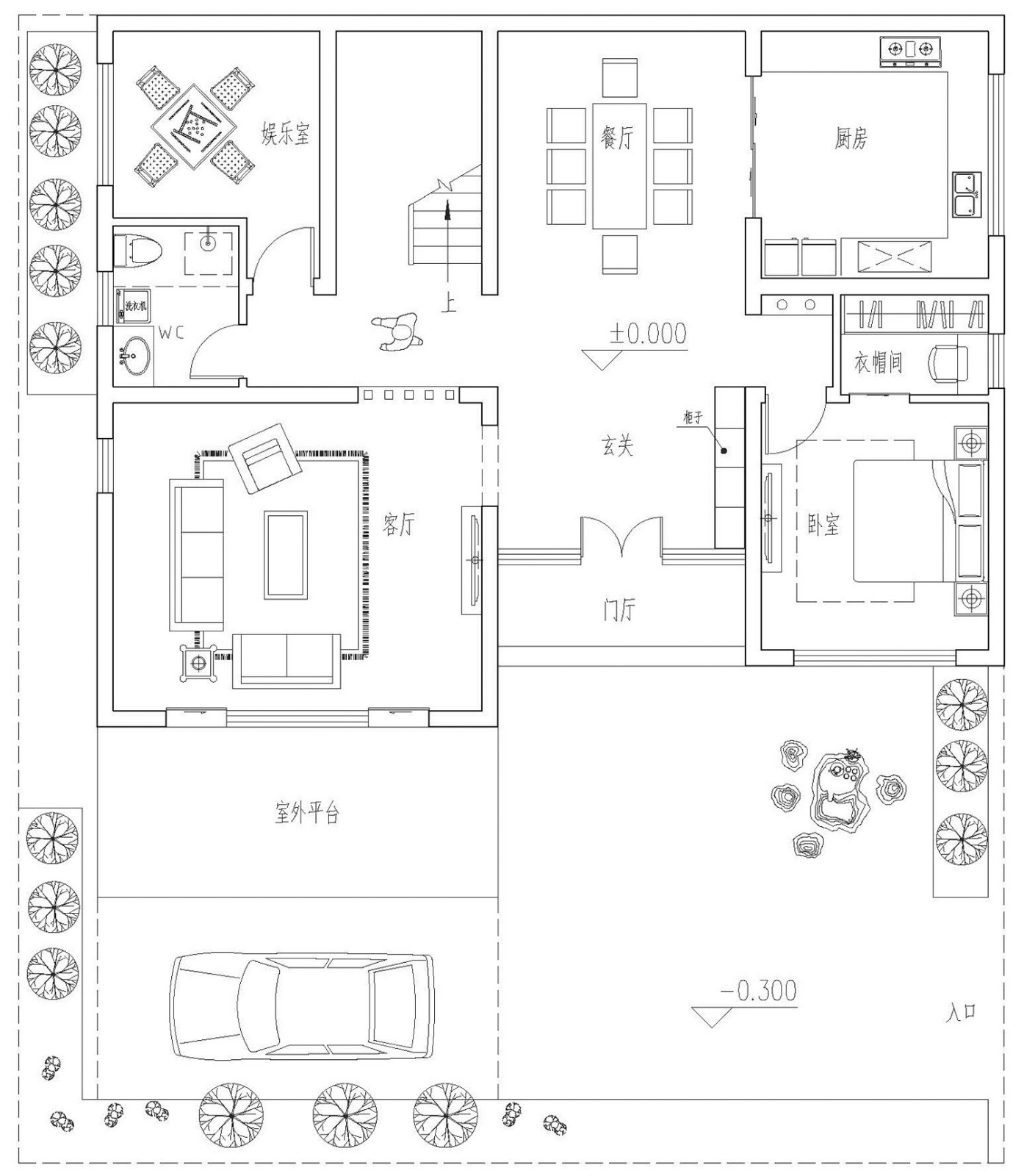
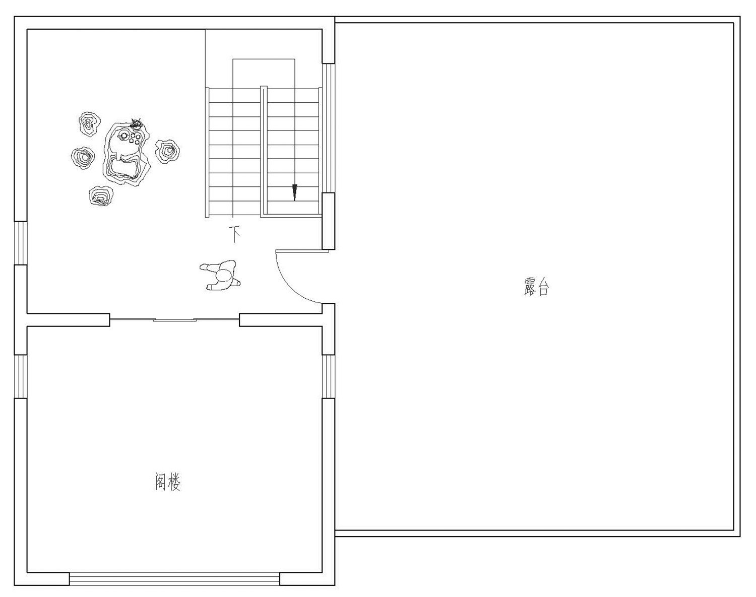
想要建一栋与众不同的农村别墅,就选择这款现代别墅设计,农村建别墅的大多都是欧式的,选择现代和新中式就会显得与众不同。这款建筑占地:13.4m×10.5m的="://www.lemeizhai.com/Picture.asp?PicClassID=91" target="_self">三层别墅设计就很与众不同,一二层是居住区,三层是露台,晾晒衣物,聚餐聚会都可以,这套别墅简洁舒适充满生活的新品质。室内布局图在后面,来看看吧
效果图:

别墅层数: 三层
占地面积:140㎡
开 间:13.4m
进 深:10.5m
建筑占地:13.4m×10.5m
建筑面积:326㎡
主体造价:48.0~53.0万
建筑结构:砖混结构
效果图:


主体设计:

客厅、餐厅、厨房、卧室、公卫、阳台、起居室、衣帽间、书房、露台。

。

转载请注明出自轩鼎自建房:://www.lemeizhai.com/