想在农村建别墅,那就推荐欧式风格的农村自建房,欧式风格漂亮、大气、简单、好看,欧式农村自建别墅可不是欧洲建筑那样的,我们讲的欧式是本土化的欧式自建房!今天给大家推荐的是山东王总私人订制款="://www.lemeizhai.com/Picture.asp?PicClassID=88" target="_self">二层农村自建别墅,这套别墅大气漂亮,主体造价适合不超过50万,室内空间大区域分明,农村建房就应该选择它。
效果图:

别墅层数: 二层
别墅风格: 欧式
占地面积:128㎡
开 间:15.3m
进 深:8.4m
建筑占地:15.3m×8.4m
建筑面积:258㎡
主体造价:36.2~41.2万
建筑结构:砖混结构
效果图:



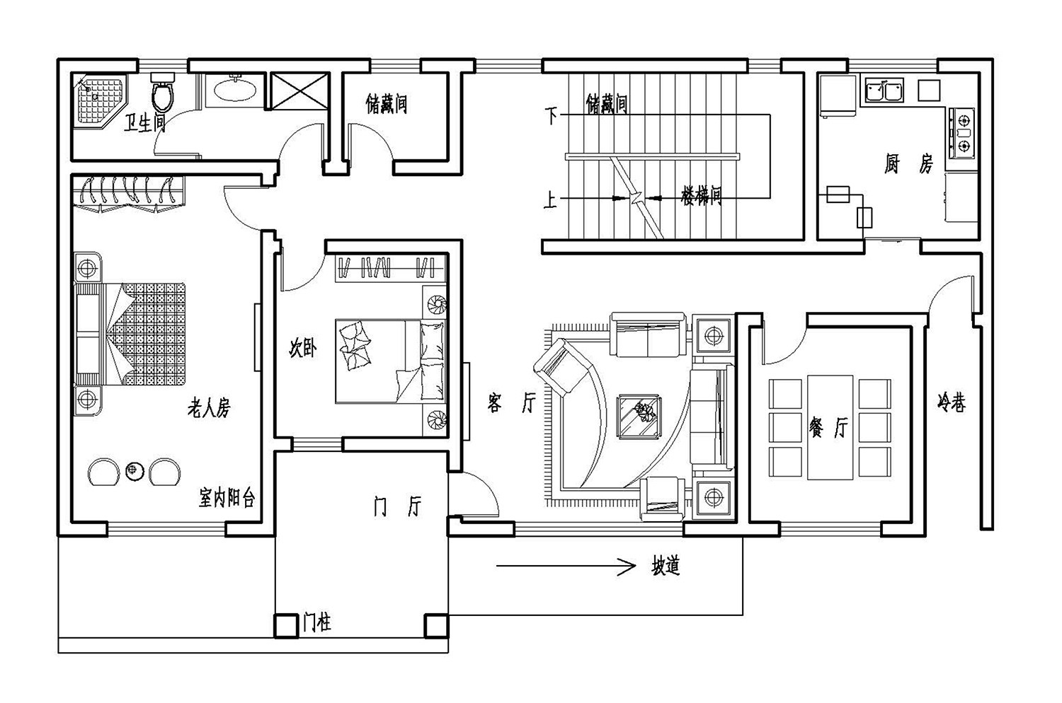
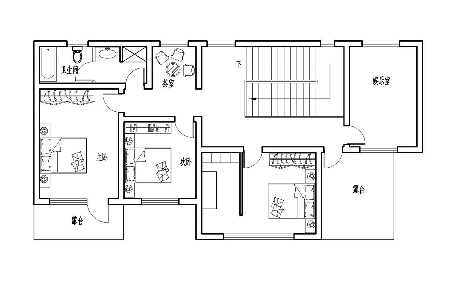
主体设计:

客厅、餐厅、厨房、卧室、公卫、阳台、露台。

。
转载请注明出自轩鼎自建房:://www.lemeizhai.com/