许多人说,麻雀虽小五脏俱全,房子面积小不是问题,主要是看您怎么布局设计,将小房子住出豪宅的感觉。今天我们要介绍两款别墅房,都是二层复式别墅,面积也都是小面积型,他们的布局好在小巧精致,处处透露着设计者的巧妙用心。
图纸1



简洁的外观和新颖的配色让整体建筑更显干净清新,外墙采用原生态的红砖装饰,经济实用方便打理。户型设计开间8.8米,进深9.6米,占地面积88.95米,一共设计5间卧室、2间客厅、3间卫生间、1个阳台,一层还有一个观景走廊。其中卧室较多,而且阳台也足够让房间通透明亮,采光极好。
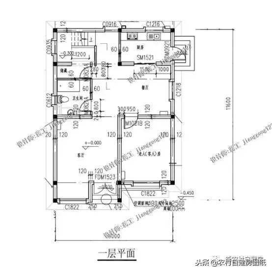
图纸2



真石漆和文化石作为外部装饰材料,简单经济易于屈才,绛紫色屋顶为整栋建筑的点睛之笔。户型设计开间8米,进深11.6米,占地面积93平方米。室内一共设计3室2厅、3卫、1厨房、1储藏室、1书房、1露台。一层专门设计有老人房,对于腿脚不灵活的老人来说,住在一楼是最方便的。这栋别墅还有一个最大的特点是高度足够,相对于楼房来说,不会给人一种压迫感。二楼基本都是可以用来当作卧室的小隔间,充分利用了空间。