现在农村有很多房屋设计都千奇百怪,往往千奇百怪的房屋都一塌糊涂建起来不光美观性没有了,就连实用性也大打折扣,现在农村建房很多都是当地的施工队,当地施工队一般是根据经验施工,所以图纸此时就尤为重要。拥有专业的施工图纸,有利于施工队从前期的规划设计中,根据当地的图纸情况、气候情况结合整体情况建造,在防水、现浇,砌墙等需要注意的地方也会引起重视。所以建房的户型最好选择施工简单、造价经济的,如果图纸设计不好那么再好的施工团队也不可能完成完美的任务,那么今天我给大家推荐的这5套别墅图纸在农村地区都能建起来。
01



这栋二层别墅属于框架结构,13.53X11.5米,占地面积150.3平米,总建筑总面积280.3平米。
左侧是车库,方便平时出行,车库有一个后门和室内连通。屋前有门廊,可以摆放一些花草,增加美观度。进门是堂屋,可以摆放神龛,红白喜事也可以再次进行。楼梯间设计了储物间,充分利用室内空间。二层又3卧室、1客厅、1书房、1露台、1阳台,露台上有一个凉亭设计。
02



这是一栋经典的田园风别墅,同样是框架结构建筑。13.7X10.2米,占地131.03平米,总建筑面积291.61平米。
一层洗手间设计在楼梯下,不会浪费活动区面积,并且设计了洗漱间,干湿分离。娱乐室平时可以休闲娱乐,让农村生活不再单调。二楼有安静的书房提供学习、工作的场所,客厅的设计方便招待客人。
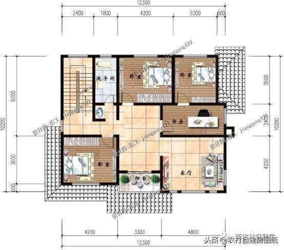
03



这栋清新秀雅风格的二层别墅属于砖混结构,12.6X10.1米,占地面积116.3平米,总建筑面积253平米。
一楼有一个门廊和小阳台的设计,在农村这样的设计比较少见。客厅方正大气,主人家的品味不言而喻。二楼3间卧室空间都比较宽敞,而且相对独立,让家人之间彼此不被打扰。