5款三层农村建房别墅,框架结构70年使用年限,三代都不过时
人总要有住的地方,房子是为我们遮风挡雨的温暖港湾,不论你在哪里每一个人都希望自己有一套好的房子,一套房子是成家立业根本,有了基础才有了幸福家庭。今天推荐的这5款农村建房别墅都是三层的,面积都比较大,实用性都非常强,使用年限也可达到70年,一次性把房子建好,不仅自己有面子,儿孙后代也有福。
户型一




户型基本信息
开间:15.5米
进深:14.2米
占地面积:227.65米
建筑面积:674.88米
结构类型:框架结构
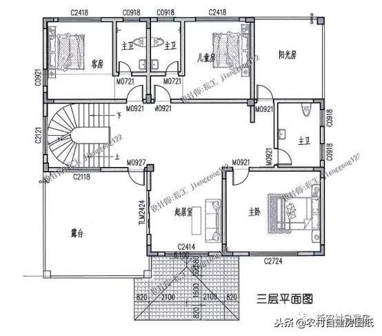
户型二




户型基本信息
开间:13.49米
进深:12.392米
占地面积:164.29米
建筑面积:463.47米
结构类型:框架结构
这2款三层别墅面积都很大,豪华大气,外观经典,三代不过时,绝对满足了三代人的居住需求,这中风格各异的农村别墅深受广大农民兄弟的喜爱,不管你喜欢什么样的风格的,只要看好了那就行动吧,如果现在不建等以后见不了了岂不是憾事一桩。