农村自建房来看看这一间房屋设计,真的美观又大方
洁白大气,通透明亮的房屋设计
这样一栋农村自建别墅,简约大气,具有自己的风格。整体房屋成长方形一层面积大于二层,下宽上窄。有脚踏实地之意,地基牢固安全且寓意好。
· 房屋外形
这座现代风格的两层住宅以其简洁的线条和明亮的色彩,展现了当代建筑设计的美学理念。
1. 颜色:房屋外观采用白色外墙搭配深蓝色屋顶,营造出清新而高雅的视觉感受。
2. 窗户:大面积的玻璃窗不仅增加了室内的采光,也让居住者能够更好地欣赏户外的自然景色。
3. 庭院:房屋前的绿地和休闲区设计,提供了一个放松身心的理想空间。
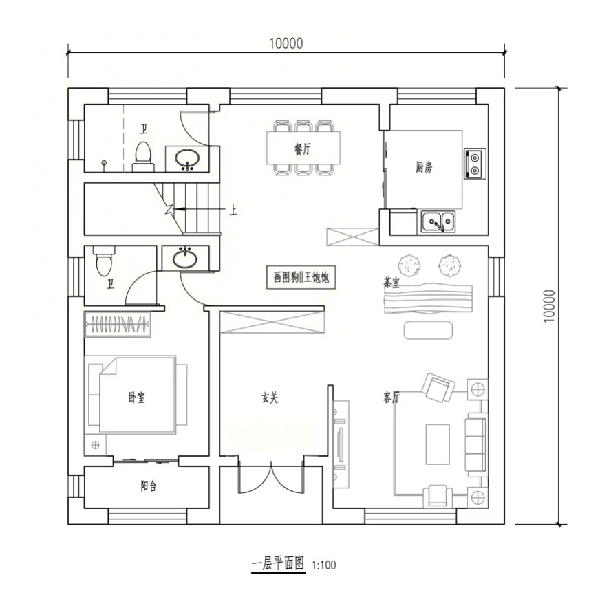
· 第一层
一层平面图显示,房屋内部布局合理,功能分区明确。
1. 入口处设有玄关,紧接着是宽敞的客厅和茶室,适合家庭聚会和日常休闲。
2. 厨房与餐厅紧挨着,便于烹饪和用餐。
3. 一层还设有一间卧室、两个卫生间和一个阳台,方便家庭成员使用。

· 第二层
二层平面图则更加注重私密性和舒适性。
1. 中央是客厅,适合家庭成员的休闲和交流。
2. 配有三个卧室和一个卫生间,提供更多的私人空间。
3. 二层还设有书房和衣帽间,增加了居住的舒适性和实用性。
4. 露台的设计则为居住者提供了一个户外休闲的好去处。

整体来看,这座住宅的外形与内部设计相得益彰,既满足了现代家庭对居住空间的多功能需求,又保持了建筑的美观和实用性。
转载请注明出自="://www.lemeizhai.com/">别墅设计-乡村房子设计图-农村自建房设计图-轩鼎房屋图纸网