您好,欢迎访问轩鼎房屋图纸网,轩鼎建筑为您提供新农村房屋设计图、别墅设计图纸以及别墅定制设计与咨询服务。
 
 
  热门搜索:自建房 别墅设计 房屋设计图   
网站首页 图纸大全 定制设计 作品展示 建房图文 联系我们
一层房屋图纸
二层房屋图纸
三层房屋图纸
四层以上图纸
双拼房屋图纸
其他建筑图纸
 
 
 您的位置:首页 ->> 建房图文 ->> 现代住宅设计:自然与空间的完美共生
 
 

现代住宅设计:自然与空间的完美共生

发布时间:2025/7/11 9:24:17 点击数: 143次 

现代住宅设计:自然与空间的完美共生

          在现代建筑设计的浪潮中,如何将自然元素与居住空间完美融合,打造出既舒适又具美学价值的住宅,成为了设计师们不断探索的课题。这组房屋设计图,为我们呈现了一个极具参考价值的范例。

·      外观设计

          从外观上看,这栋住宅采用了现代简约风格,白色的墙面与木质元素相得益彰。大面积的玻璃窗不仅引入了充足的自然光线,还将室外的景色引入室内,模糊了室内外的界限。屋顶露台的设计,为居住者提供了一个亲近自然、享受户外时光的绝佳场所。

4.1.jpg

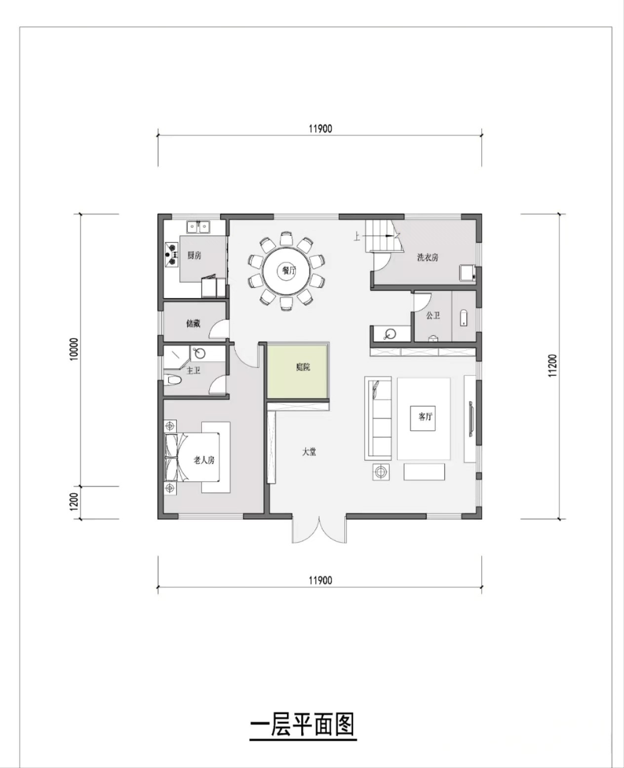
·      第一层

          进入室内,一层的布局充分考虑了家庭生活的需求。

1.    宽敞的客厅与餐厅相连,形成了一个开放的公共空间,适合家人团聚和朋友聚会。

2.    老人房的设置体现了对老年人生活的关怀,靠近卫生间的设计方便了老人的日常起居。

3.    庭院的设计更是一大亮点,它不仅为室内带来了更多的自然光线,还为居住者提供了一个种植花草、休闲放松的空间。

4.2.jpg

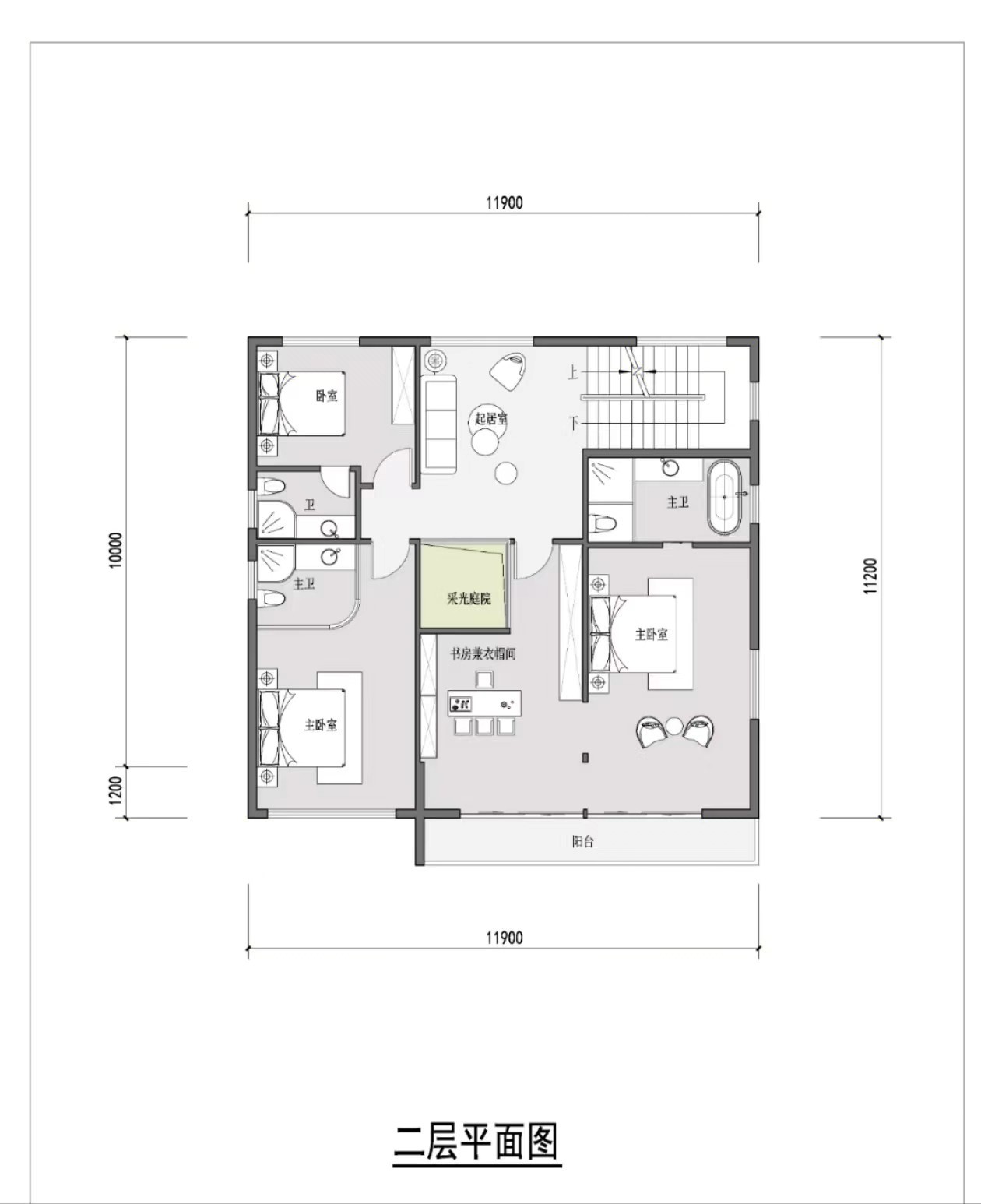
·      第二层

          二层的设计则更注重居住者的个人空间。

1.    主卧套房配备了独立的卫生间和衣帽间,为居住者提供了一个私密、舒适的休息环境。

2.    起居室的设置为家人提供了一个交流、休闲的空间。

3.    阳台的设计不仅增加了室内的采光和通风,还为居住者提供了一个观景、晾晒衣物的场所。

4.3.jpg

          在整个设计中,自然元素的运用贯穿始终。庭院、阳台和屋顶露台的设计,让居住者能够随时亲近自然。大面积的玻璃窗和开放式的布局,让自然光线和新鲜空气充分进入室内,营造出一个健康、舒适的居住环境。 这组房屋设计图展示了现代住宅设计的新理念,即通过巧妙的布局和对自然元素的充分利用,打造出一个既舒适又具美学价值的居住空间。

转载请注明出自="://www.lemeizhai.com/" target="_self">://www.lemeizhai.com/

 
· 盖房子是一辈子的事,如果不喜欢...
· 2023年农村合作医疗报销范围(农...
· 农村可以按照自己的想法盖房子,...
· 三层复式别墅,拥有一款这样的别...
· 简欧风尚
· 现代简约建筑风格特点有哪些 (现...
· 农村小伙2年建了一栋房,你猜猜...
· 中国经典的中式四合院,是您过上...
  关于我们 网站事务 帮助中心
客服热线:400-079-6579
客服QQ:10928711 10928755 10928799
地址:山东省潍坊财富大厦1801
 

预定须知
顾客必读
配送方式

 


Copyright 2016 www.lemeizhai.com All Rights Reserved ICP备案序号:鲁ICP备2026012448号-1
轩鼎房屋图纸 电 话:0536-3385581 3385582 传 真:0536-3385581 地 址:山东省潍坊财富大厦1801


keywords:房屋设计图 房屋设计图 农村房屋设计图 农村房屋设计图 建房图文