布局的合理性直接关乎到往后生活的便利性和舒适度,尺寸比例同样会很重要,计算适宜的话既不浪费面积又能够将空间合理支配,回农村老家盖房子的很多人都在城里买过房子,看多了几室几厅的惯性布局,在农村建房子有必要转变一下自己的思维,不说其他,在空间上来说就比较宽裕,不需要太过紧凑。
很多人在农村自建房的时候,还是偏向经济实用的户型。那些华丽的户型施工难度大、房屋造价也高,一般家庭根本承担不起,所以最受大家欢迎的还是简单大气的户型,今天这款户型就很合适,值得建。其实只要有钱有那个实力想建比这个还要好的别墅那不是个难题,这款别墅给父母或自己养老是最适合的 ,这种户型花不了多少钱,上网查查就知道了。
别墅效果图:

明亮大气的欧式农村别墅,两大开间,大门居右侧,户型可以左右调换。橘黄色的屋顶欢快又温暖,配上精致的雕花,优雅又时尚。
平面设计图:

入户玄关可以设置为堂屋,客厅有将进30个平方,大气实用,除了基本的生活空间,还配有储藏室,用来存放杂物或者做洗衣房都不浪费。

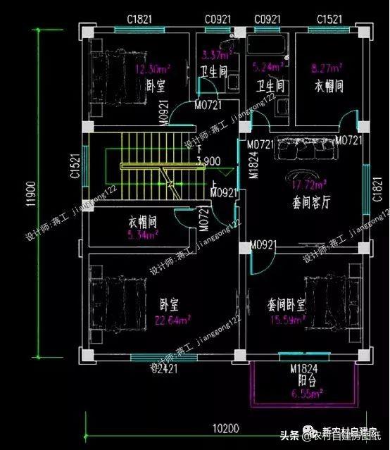
二楼设计有二个套间,一个套间带有卧室、客厅、衣帽间和卫生间,一个套间带有衣帽间,另有一间次卧和公卫。

三层三间卧室和屋顶露台,客厅宽敞,卧室多,这样的户型建在农村美观又实用,既不浪费空间,又节省造价。
看完这款农村别墅,有的人觉得比较普通,很丑,但是却胜在经济实用。别看普通它可是大部分家庭能够建的起的别墅,比起豪华大气它更注重实用性。