您好,欢迎访问轩鼎房屋图纸网,轩鼎建筑为您提供新农村房屋设计图、别墅设计图纸以及别墅定制设计与咨询服务。
 
 
  热门搜索:自建房 别墅设计 房屋设计图   
网站首页 图纸大全 定制设计 作品展示 建房图文 联系我们
一层房屋图纸
二层房屋图纸
三层房屋图纸
四层以上图纸
双拼房屋图纸
其他建筑图纸
 
 
 您的位置:首页 ->> 建房图文 ->> 现代住宅设计:美学与功能的完美融合
 
 

现代住宅设计:美学与功能的完美融合

发布时间:2025/7/15 21:12:25 点击数: 131次 

现代住宅设计:美学与功能的完美融合

          在当今的建筑设计领域,房屋设计已不再仅仅是满足基本居住需求,而是逐渐演变成一种对生活品质的追求与表达。一个优秀的房屋设计,应该是美学与功能的完美融合,既要有令人赏心悦目的外观,又要具备合理实用的内部布局。

·      外观设计 

          第一张图片中的房屋,是现代简约风格的杰出代表。白色的外墙与深色的屋顶形成鲜明对比,简洁明快的线条勾勒出建筑的轮廓。大面积的玻璃窗不仅引入了充足的自然光线,还让室内外空间相互渗透,营造出一种通透而开阔的居住氛围。房屋周围的绿植与草坪,为整个建筑增添了一抹自然的生机,展现出一种与环境和谐共生的设计理念。

7.jpg

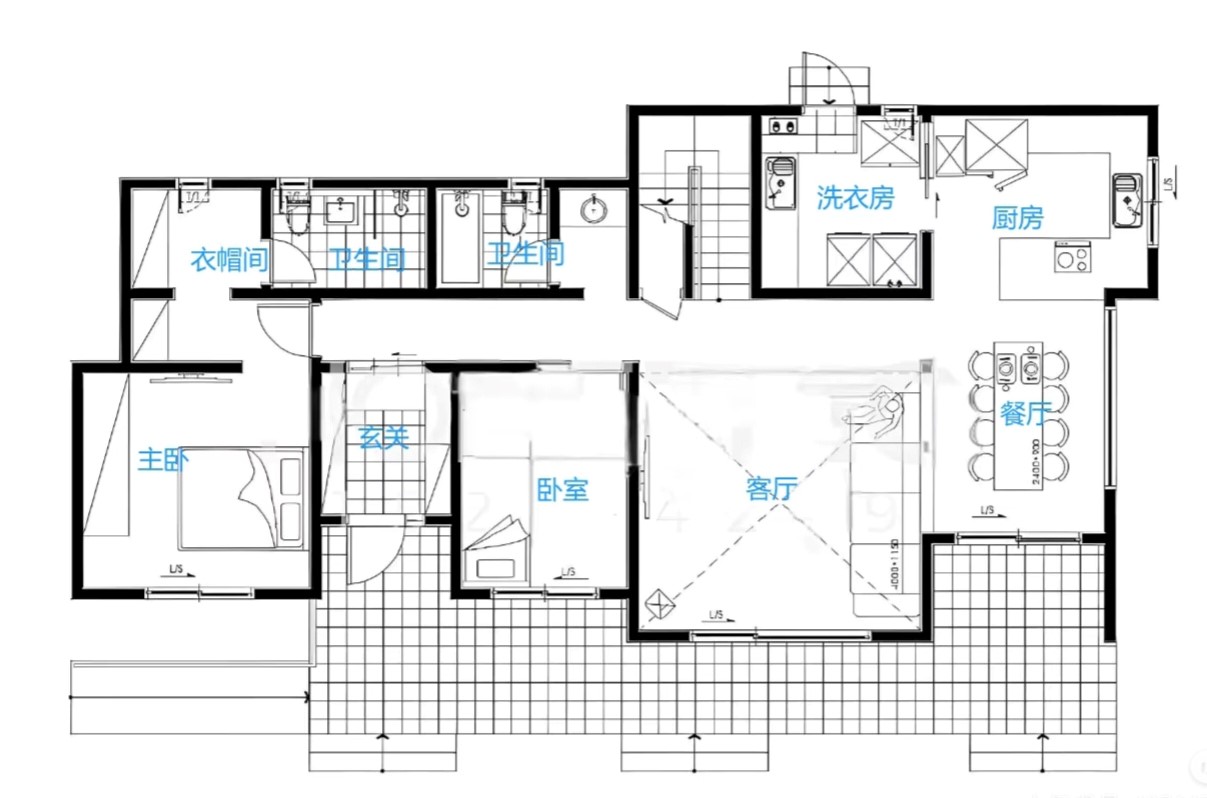
·      第一层 

          第二张图片的户型图展示了一个功能齐全的居住空间布局。从图中可以看到,各个功能区域划分明确,动线设计合理。主卧配备独立的衣帽间和卫生间,彰显出主人的尊贵与私密。客厅与餐厅相连,形成一个宽敞的公共活动区域,适合家庭聚会与社交活动。厨房与洗衣房的设置,体现了对日常生活便利性的考量,让家务活动变得更加轻松高效。

71.jpg

·      第二层 

          第三张图片的户型图则呈现出一种独特的空间设计。客厅上空的挑高设计,增加了空间的层次感与视觉冲击力,营造出一种宽敞而大气的居住体验。两个卧室的布局相对独立,保证了居住者的隐私与安静。卫生间的位置设计合理,方便各个房间的使用。这种户型设计适合那些追求个性与独特居住体验的家庭。

72.jpg

          好的房屋设计能够提升人们的生活品质,让居住成为一种享受。它不仅满足了人们的基本生活需求,更在精神层面给予人们慰藉与愉悦。在这个不断发展的时代,房屋设计也将不断推陈出新,为人们创造出更多舒适、美观、实用的居住空间。

转载请注明出自="://www.lemeizhai.com/" target="_self">://www.lemeizhai.com/

 
· 今天这款乡村三层自建房别墅设计...
· 两栋农村别墅设计,宽约11米,第...
· ​农村自建房,乡村别墅:...
· 舒适漂亮舒适的别墅就选这款
· 空调外机噪音大的原因是什么(空...
· 用沙漠的沙子盖农村自建房?(看...
· 好的生活始于漂亮的房子,心动就...
· 这栋三层欧式风格别墅,设计精湛...
  关于我们 网站事务 帮助中心
客服热线:400-079-6579
客服QQ:10928711 10928755 10928799
地址:山东省潍坊财富大厦1801
 

预定须知
顾客必读
配送方式

 


Copyright 2016 www.lemeizhai.com All Rights Reserved ICP备案序号:鲁ICP备2026012448号-1
轩鼎房屋图纸 电 话:0536-3385581 3385582 传 真:0536-3385581 地 址:山东省潍坊财富大厦1801


keywords:房屋设计图 房屋设计图 农村房屋设计图 农村房屋设计图 建房图文