您好,欢迎访问轩鼎房屋图纸网,轩鼎建筑为您提供新农村房屋设计图、别墅设计图纸以及别墅定制设计与咨询服务。
 
 
  热门搜索:自建房 别墅设计 房屋设计图   
网站首页 图纸大全 定制设计 作品展示 建房图文 联系我们
一层房屋图纸
二层房屋图纸
三层房屋图纸
四层以上图纸
双拼房屋图纸
其他建筑图纸
 
 
 您的位置:首页 ->> 建房图文 ->> 农村自建房设计:室内外的和谐之美
 
 

农村自建房设计:室内外的和谐之美

发布时间:2025/7/19 9:44:28 点击数: 121次 

农村自建房设计:室内外的和谐之美

          房屋设计是一门融合了美学、功能与生活方式的综合艺术,它不仅仅是对建筑外观的塑造,更是对室内空间的精心雕琢。一个优秀的房屋设计,能够实现室内外空间的完美过渡与和谐统一,为居住者带来舒适、便捷且富有品质的生活体验。

·      外观设计 

          从这组图片中可以看到,房屋的外观设计简洁大方,采用了现代风格的建筑元素。白色的墙体搭配灰色的屋顶,形成了鲜明的色彩对比,给人一种清新、明快的视觉感受。大面积的玻璃窗不仅增加了室内的采光,还让居住者能够随时欣赏到室外的美景,实现了室内外空间的自然连接。

71.jpg

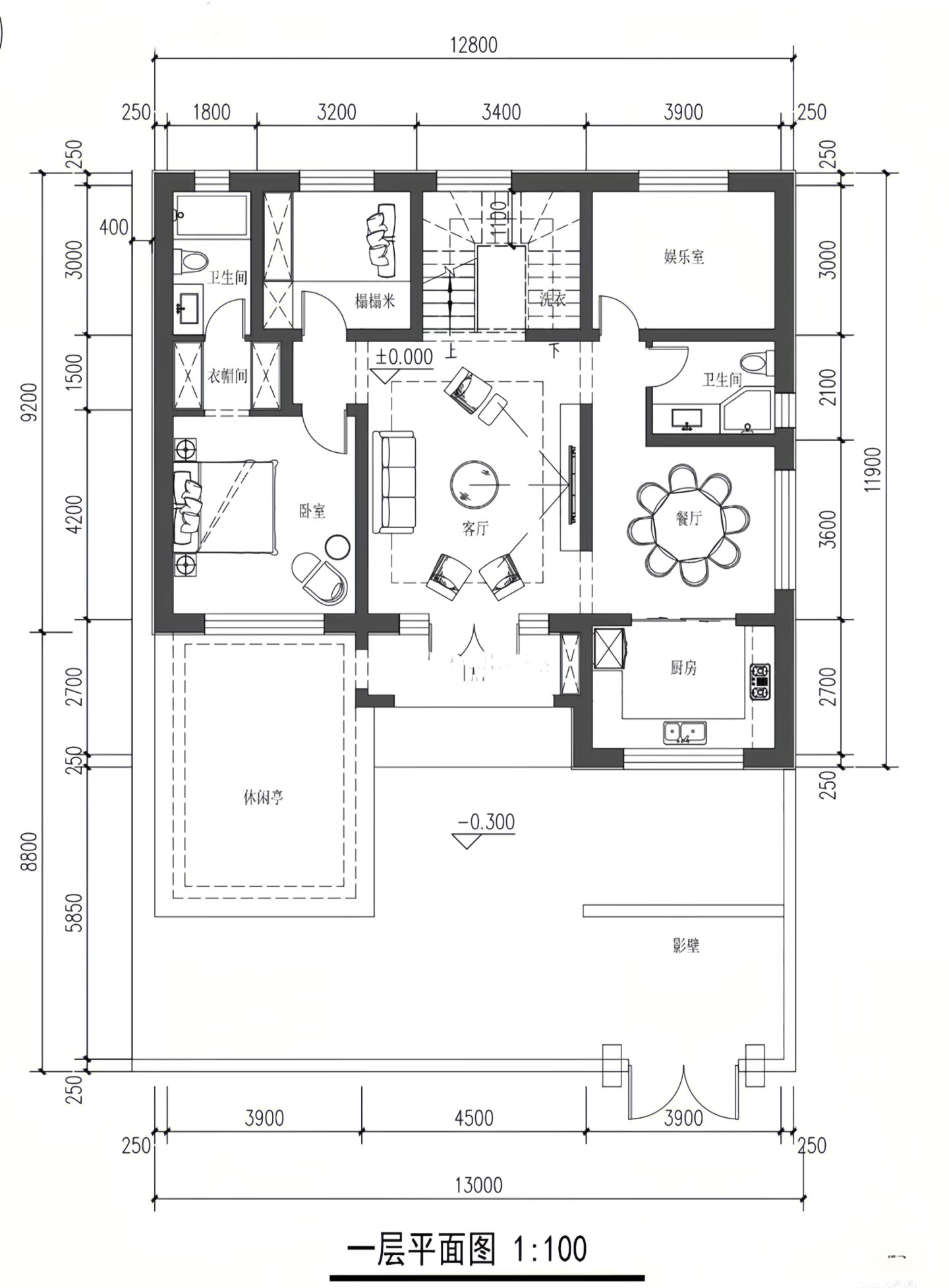
·      第一层 

           进入室内,一层平面图展示了房屋的功能布局。

1.    客厅、餐厅、厨房等公共区域相互连接,形成了一个开放、通透的空间。

2.    这种布局不仅方便了家人之间的交流与互动,还能够让自然光线充分进入室内,营造出明亮、舒适的居住环境。

3.    此外,一层还设置了卧室、卫生间等私密空间,满足了居住者的基本生活需求。

72.jpg

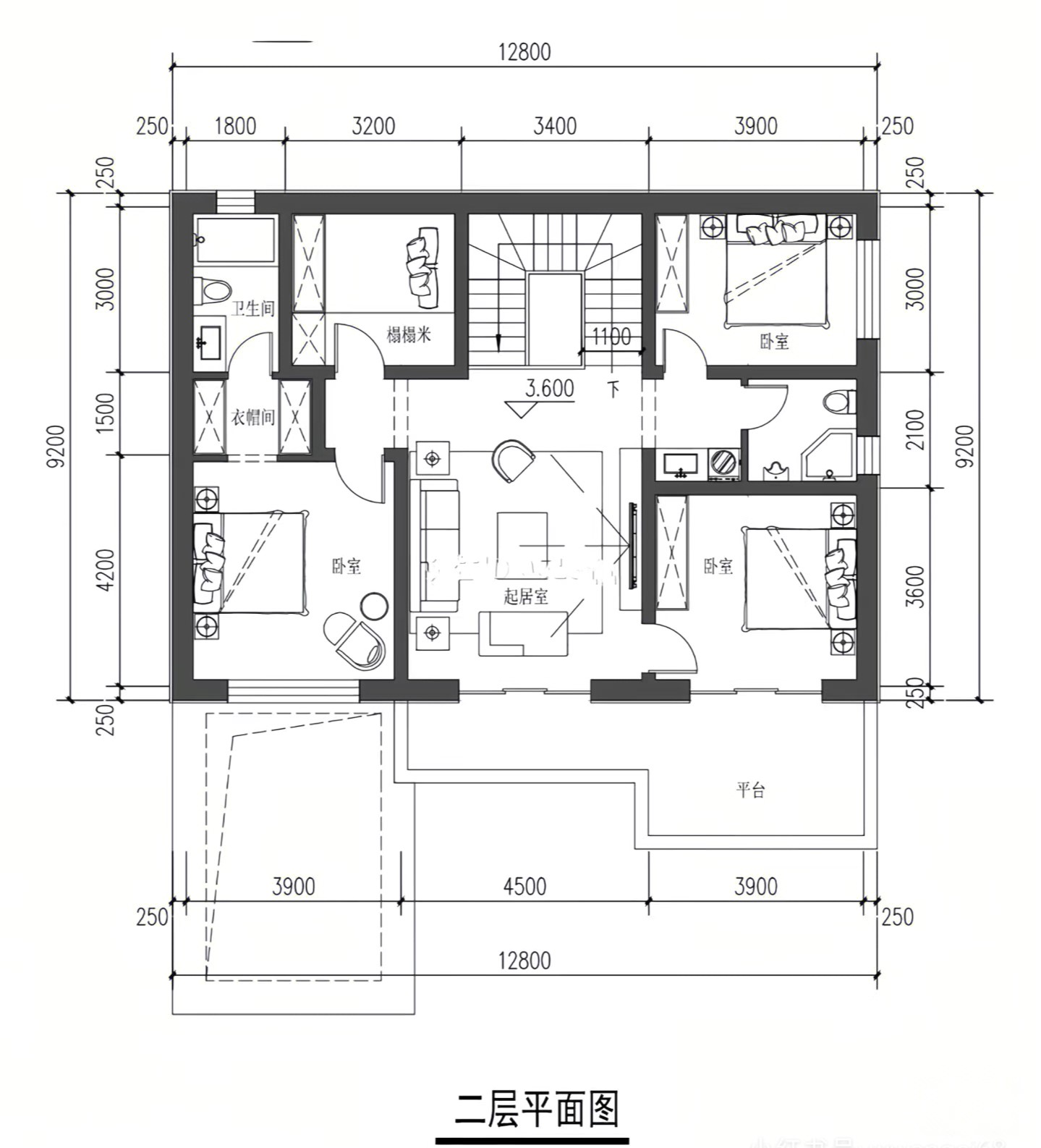
·      第二层 

          二层平面图则展示了房屋的休息区域。

1.    卧室、起居室等空间的布局合理,保证了居住者的私密性与舒适性。

2.    同时,二层还设置了平台,为居住者提供了一个休闲、娱乐的户外空间。

3.    在这里,居住者可以尽情享受阳光、空气与美景,感受生活的美好。

73.jpg

          总的来说,这组房屋设计充分考虑了室内外空间的融合与过渡,实现了功能与美学的完美统一。通过合理的布局与精心的设计,居住者能够在这个空间中享受到舒适、便捷且富有品质的生活。这种设计理念不仅体现了对生活的热爱与追求,更是对未来居住方式的一种探索与创新。

转载请注明出自="://www.lemeizhai.com/" target="_self">://www.lemeizhai.com/

 
· 越来越多的人想在家乡建别墅。我...
· 拉风现代别墅,时尚最时尚,全面...
· 地板砖瓷砖空鼓怎么处理(瓷砖养...
· 大理石电视背景墙特点(大理石背...
· 二层现代别墅,极致的住房体验
· 今天分享的这款二层带独立厨房别...
· 一栋别墅一定要有自己的特色,美...
· 两栋12米宽以上的乡村别墅设计,...
  关于我们 网站事务 帮助中心
客服热线:400-079-6579
客服QQ:10928711 10928755 10928799
地址:山东省潍坊财富大厦1801
 

预定须知
顾客必读
配送方式

 


Copyright 2016 www.lemeizhai.com All Rights Reserved ICP备案序号:鲁ICP备2026012448号-1
轩鼎房屋图纸 电 话:0536-3385581 3385582 传 真:0536-3385581 地 址:山东省潍坊财富大厦1801


keywords:房屋设计图 房屋设计图 农村房屋设计图 农村房屋设计图 建房图文