在城里很少看到双拼别墅,那什么是双拼别墅呢?双拼别墅是两个别墅组合在一起的,这样的别墅就是双拼别墅。双拼别墅最适合农村地区两人共有一个宅基的,共同拥有一个宅基的朋友一般都是亲兄弟。双拼别墅的特点是拥有独立的居住空间且隔音效果好,这样兄弟之间居住起来就不会有什么问题了,兄弟之间难免磕磕碰碰,和睦相处才是王道。建一栋双拼别墅还能体现家庭的和睦团结,因为家和万事兴嘛。
3套兄弟双拼别墅图纸一:

基本信息:
占地尺寸:16米x12.5米
占地面积:190平方
建筑面积:365平方米
建筑结构:砖混结构
造价估算:28万
全景图:


室内设计布局图:


对称式结构,一层设计有客厅、卧室、厨房、餐厅、卫生间;二层设计有3卧室、2卫生间、阳台。
3套兄弟双拼别墅图纸二:

基本信息:
☑ 占地尺寸:18.2米x10.7米
☑ 占地面积:194.74 ㎡
☑ 建筑面积:368㎡
☑ 建筑结构:砖混结构
☑ 造价估算:39万左右
全景图:

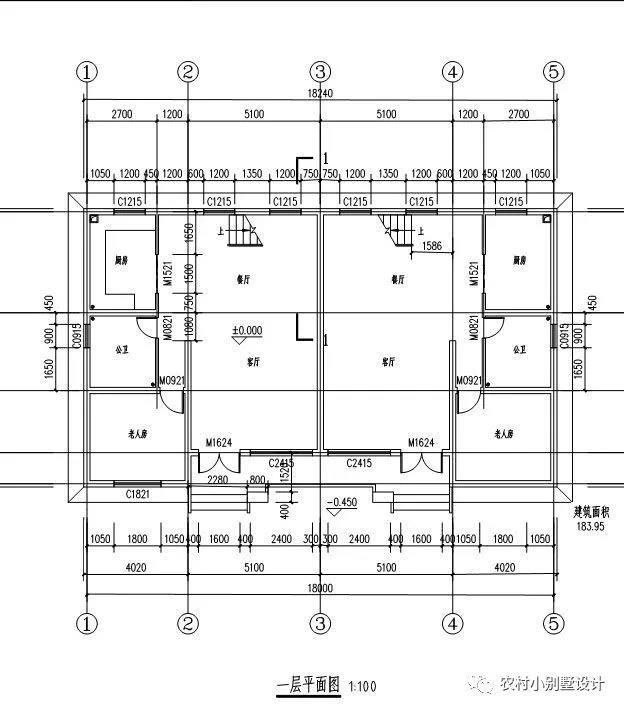
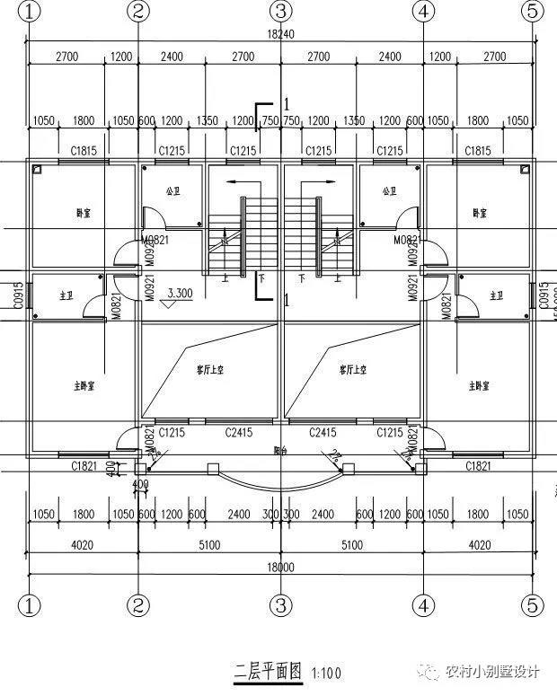
室内布局设计图:

一层设计图:2个客厅、2个厨房、2个公卫、2个餐厅、2个老人房;

二层设计图:2个主卧室、2个客厅上空、2个公卫、2个卧室、2个主卫、阳台;阁楼:阁楼。
转载请注明出自轩鼎别墅设计://www.lemeizhai.com/