农村别墅最重要的不是="://www.lemeizhai.com/search.asp?SearchType=Software&imageField.x=21&imageField.y=17&SearchKey=%C9%DD%BB%AA" target="_self" title="奢华">奢华,而是亲切朴实,这两点才符合农村别墅的气质,太过奢华会花费太多,在农村不需要花瓶别墅,需要的是实用性好的田园风别墅。别墅实不实用主要看设计,因为现在的别墅都是经过设计的,设计的不得当就不实用。
第一套农村别墅户型:

这款别墅为两层欧式建筑,户型方正,简约美观。回归自然,亲切,朴实,是田园风别墅的理念,这种别墅追求的是强大的居住功能与舒适性,使得这栋别墅的别具一格。
一层室内布局:客厅,车库,卫生间,老人房,餐厅,厨房,楼梯。格局简洁适用。

二层室内布局:拥有四间卧室,包括起居室跟阳台,使得整间别墅的居住功能十分突出!

第二套农村别墅户型:

别墅基本信息
☑ 占地尺寸:12.6x9.9米
☑ 占地面积:110.94㎡
☑ 建筑面积:220.39㎡
☑ 建筑结构:砖混结构
☑ 造价估算:16-20万
这套乡村别墅开间12.6米,进深9.9米,占地面积110.94平方米,建筑面积220.39平方米,建筑高度9.74米,共设4室 2厅 1娱乐室 2卫 1厨 1车库
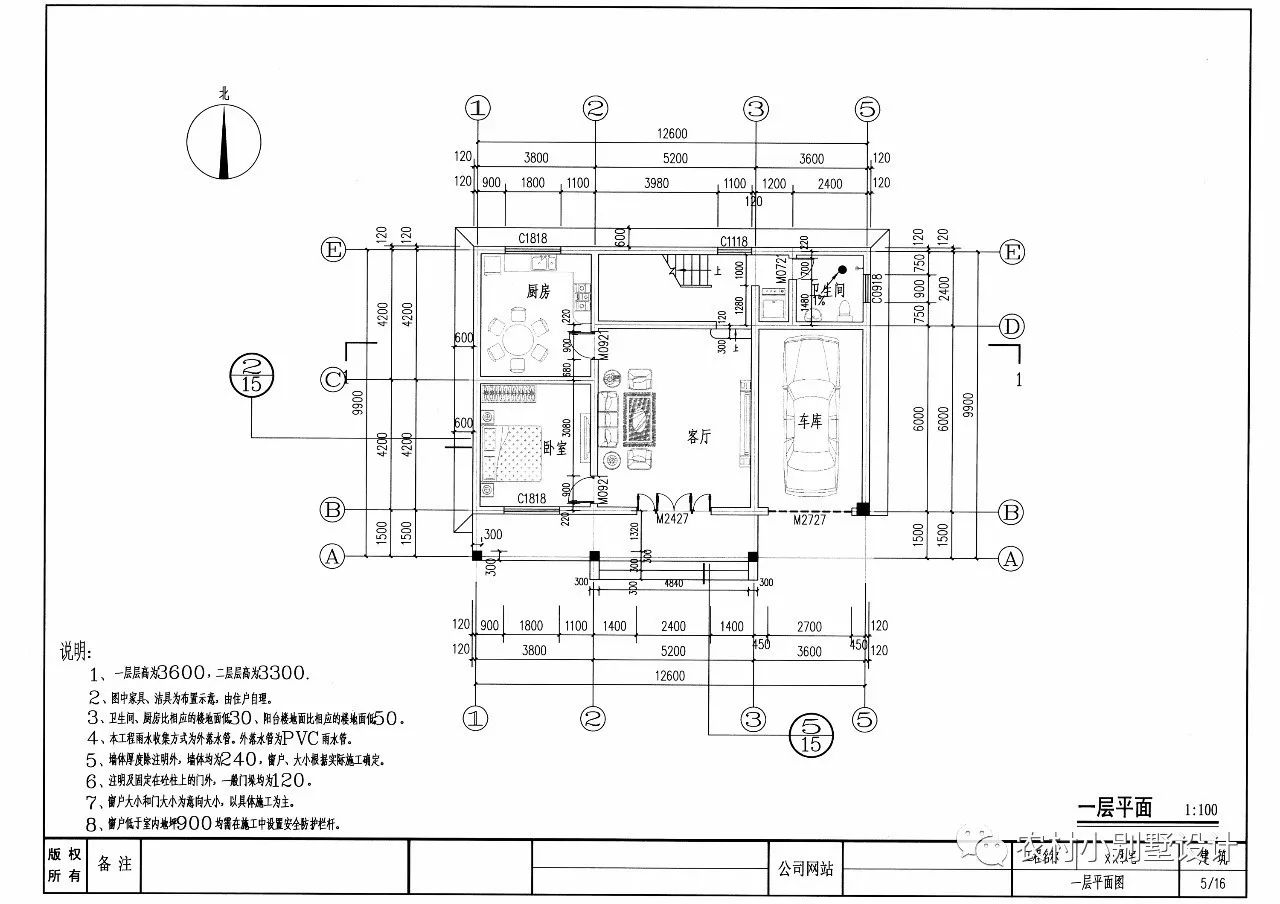
下面来看看这套户型的详细平面:
一层室内布局:

一 层:配置有客厅、卧室、厨房、餐厅、卫生间 车库
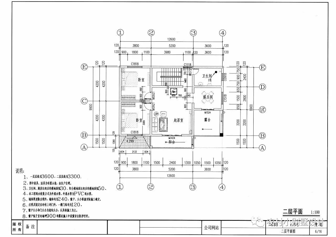
二层室内布局:

二 层: 起居室(附阳台)、2卧室、娱乐间(附阳台)、卫生间
不管什么样的别墅,适合自己的才是最重要的。
转载请注明出自轩鼎别墅设计://www.lemeizhai.com/