中国有许多传统文化非常优秀,但是能得到传承的却较少。曾经有一段时间国内非常推崇外国的文化,模仿外国的生活方式,麦当劳肯德基等非常火爆,提别是小编小时候同学们都以去吃肯德基为自豪。除此之外,国外的建筑风格在国内也受到大面积的推广,但小编觉得每种国度的文化都有好坏之分,过度的崇洋媚外反而会使自家的文化没落。
今天我们要介绍的这款别墅,中西结合,既有中式别墅的美观气质,又有欧式别墅的方便时尚。一起来看一下。
效果图:

基本信息:
尺 寸: 面宽18.5米
进深10.7米
建筑面积: 393.0㎡
土建造价: 60.0万
全景图:





内部设计图:

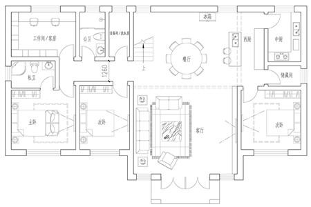
一层设计图:设有客厅餐厅和厨房,还有三件卧室以及工作间或也可以作为客房用。

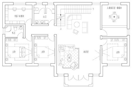
二层设计图:设有宽敞的起居室,作为二楼的活动区域,还有是三件卧室,以及衣帽间和棋牌室,休闲娱乐于一体。
转载请注明出自轩鼎别墅设计://www.lemeizhai.com/