乡村美景,绿水青山,是每个人都喜欢的,在农村建房的那些人,可能有了什么赚钱的门路,随着扶贫政策的落实某些地区都有了特别产业,人们的生活水平经济水平得到了相应提高,但也不要满足于此,有了钱就为自己的住房条件做一下努力。自己建别墅花不了多少钱,就能建一栋品相不错的现代别墅。

小编推荐的这款别墅,外墙以仿大理石墙砖、白色真石漆、灰色外墙砖装饰,多窗大露台,与自然交互性好,居住舒适。造型时设计前卫,简约时尚,有一种特别的风范。
1、户型编号:JF9074
2、主体参考造价:49-56万
3、占地面积:131平方米
4、建筑面积:484.8平方米
5、开间11.76米,进深11.58米
6="://www.lemeizhai.com/PictureShow.asp?PicID=982&PicClassID=91" target="_self" title="框架结构">、框架结构,建筑高度10.3米
别墅镜像图

别墅细节图

全景展示图




室内布局设计图

半地下层:车库面积开阔,停两辆车绰绰有余,生活便利。

一层:入户是宽敞的客厅,旋转楼梯提升别墅档次;厨房、餐厅划分在一侧,布局合理;休闲房利于打发闲暇时光。

二层:2个卧室主次分明;书房、茶厅的设计,既丰富了居家生活,又利于提高生活品质。

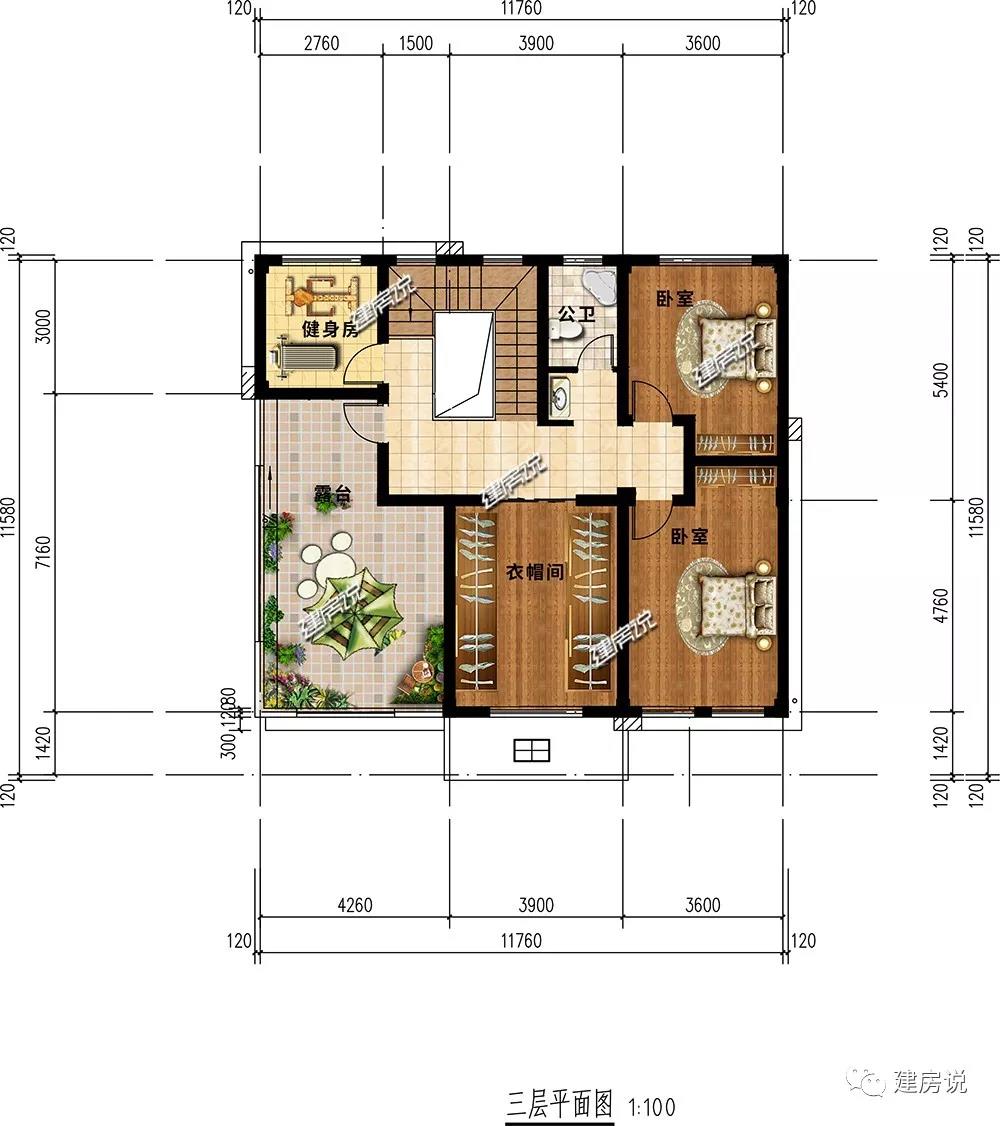
三层:2个卧室大小适中;健身房的设置,让生活有仪式感;露台面积宽敞,观景晾晒两不误。
转载请注明出自轩鼎别墅设计://ww.lemeizhai.com/