在外拼搏多年,也有了一定的实力,有了钱就要回家建一栋别墅,如果宅基地大,可以建一个大的,不仅自己有面,而且还踏实。这样不仅有一个以后可以靠得住房子,也会有一个休闲场所。

今天这款长春钱总定制的二层超大面基别墅,设计独特,充分考虑地形地貌,建出来特别大气,可以说输层不输面。
1、户型编号:JF9073
2、主体毛坯参考造价:60-70万
3、占地面积:363.13平方米
4、建筑面积:583.75平方米
5、开间27.74米,进深19.24米
6、="://www.lemeizhai.com/PictureShow.asp?PicID=675&PicClassID=97" target="_self" title="砖">砖混结构,建筑高度10.78米
别墅镜像图

别墅细节图


别墅外墙主体以米白色真石漆装饰,屋顶是蓝色坡屋顶,运用壁灯等欧式装饰配件点缀墙面。
全景展示图



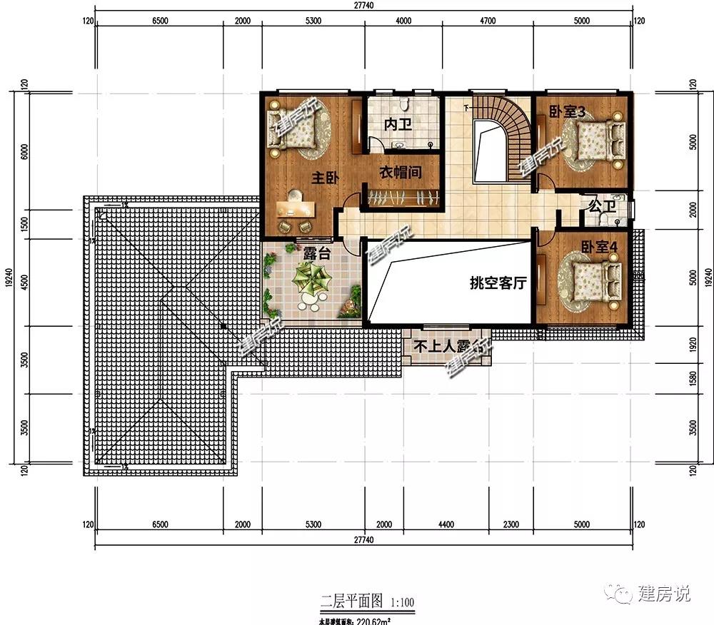
平面布局图

一层:入户即宽敞的客厅;旋转楼梯提升别墅档次;设有独立的车库,生活便利;厨房外建,洁污分离。

二层:3个卧室主次分明;露台利用通风与采光;挑空客厅复式层,让室内更加开阔,明亮。简直就是内外双修,在二层别墅里随是一个另类,但气场上一点都不输三层别墅。
转载请注明出自轩鼎别墅设计://ww.lemeizhai.com/