建别墅我们方方面面都要考虑其中,每一个细节都不能放好,细节决定成败。要想建好一栋别墅,你不光要考虑宅基,还要把地形地貌当地环境之类的信息整合,在考虑什么样的款式。
最后在准备开工前,买好材料,还要考虑质量性价比,不能图便宜随便买,一定要买口碑好的,只有这样才能保证别墅的质量。
今天这三款别墅都是为乡下小宅基的人群量身定做的,非常适合八米一下开间宅基小的家庭,这三款不论是墙体设计还是室内布局都十分大气合理,且这三款层数不一,这里可能有你喜欢的哟。
户型一
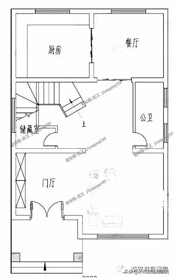
这是三层独栋别墅,占地面积才90多个平方米,

第一层门厅、餐厅、厨房、公卫、储藏室

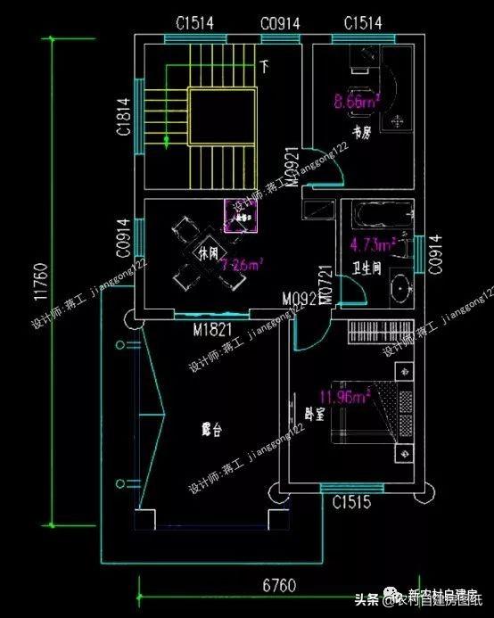
二层设有挑空客厅、2间卧室、公卫

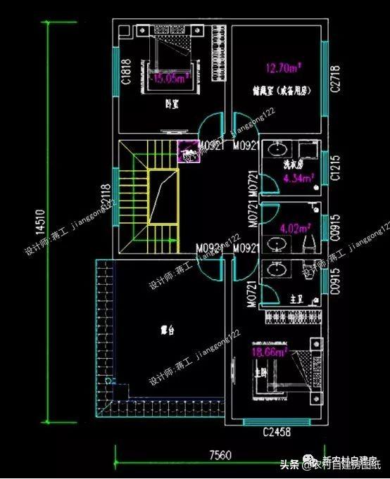
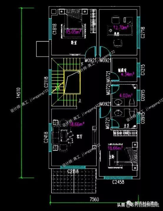
三层设有起居室、2间卧室、露台、阳台。

户型二

这款典雅的欧式风格小开建别墅,外观的造型和装饰的比较简洁大方,三楼露台的花瓶栏杆和一楼入户的罗马柱结构更加经典,砖红色西瓦搭配古朴的素色瓷砖,效果更加大气高贵。



户型三

开间7.56米,进深14.51米,典型的开间小进深大户型,所以整栋建筑的四面都设计了窗户,方便室内通风透气。进门可以看到客厅和餐厅相连,整体空间的纵深感加强,厨房厨房还有传统的灶房。二楼不仅有居住、宴客功能,还有收纳空能,洗衣房设计在了三层,方便就近在露台晾晒,这样的多功能布局堪称霸气。



转载请注明出自轩鼎别墅设计://www.lemeizhai.com/