自建别墅不仅款式多一,样式也可以随心所欲,而且还特别省钱,不仅没有了还房贷的压力,还可以轻轻松松的过上舒坦日子,不管是建给谁都是一个不错的选择,人不论在哪里都要有一个家,只要有了稳定的居所,那这个人一定是幸福的。
这款肖总定制的别墅采用仿文化石外墙砖装饰的墙体,搭配红色琉璃瓦的屋顶,使其外观更加喜庆,住进去日子肯定会越过越红火。
效果图:

1、户型编号:JF9110
2、主体毛坯参考造价:33-40万
3、占地面积:118.22平方米
4、建筑面积:311.67平方米
5、开间9米,进深13米
6、框架结构,建筑高度12.6米
别墅镜像图:

别墅细节图:


俯视展示图:

平面布局图:

一层:入户即客厅,利于接待亲朋好友;设有多入户门,便利生活;厨房、餐厅划分在一侧,布局合理。

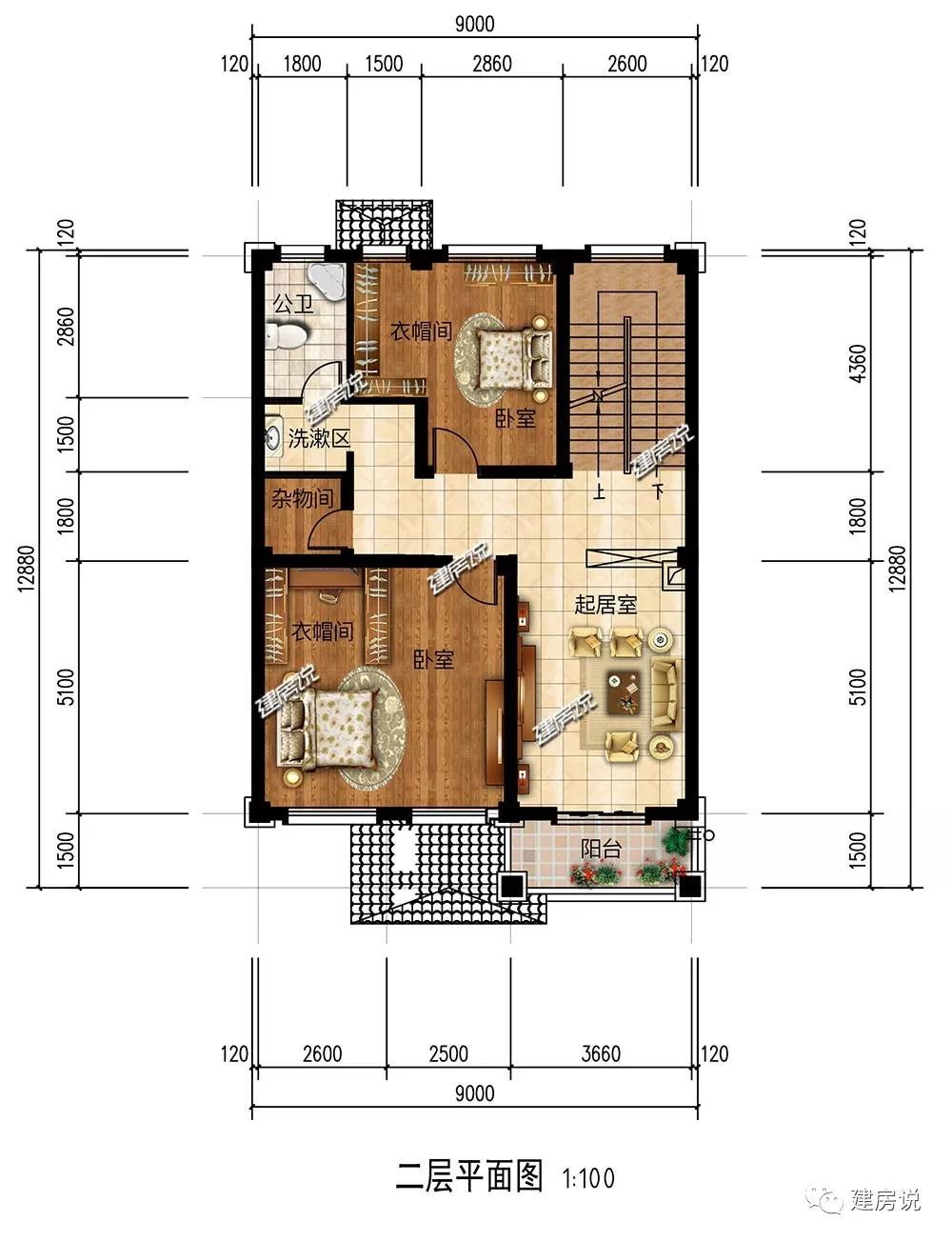
二层:2个卧室大小合适;起居室便于家人之间联络感情;起居室的阳台设计,利于通风与采光。

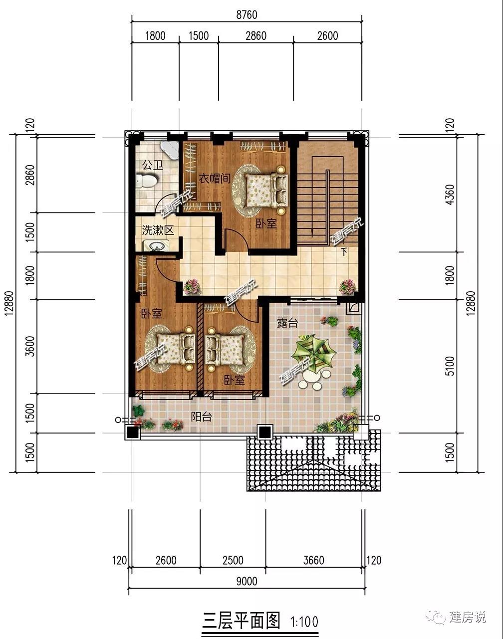
三层:设有两个卧室;露台面积宽敞,满足衣物、农作物的晾晒等。
转载请注明出自轩鼎别墅设计://www.lemeizhai.com/