清新风比较适合气候较为温暖的南方,别墅整体会给人一种较为清凉的感觉。今天我们就来介绍一款二层的别墅,面积适合,别墅风格较为="://www.lemeizhai.com/newsshow.asp?ArtID=976" target="_self">简单清新。让我们一起来看一下
别墅效果图:

别墅整体呈清新的简约风,一层外墙是青灰色的石砖,二层外墙是米白色面漆,装饰有横条纹,屋顶是灰蓝色的琉璃瓦。红色的大门使整栋别墅又增添了些许喜庆的感觉。二层有正面的朝阳阳台。
基本信息:占地尺寸10x9米,总建筑面积205平方米,主体造价20万
全景图:

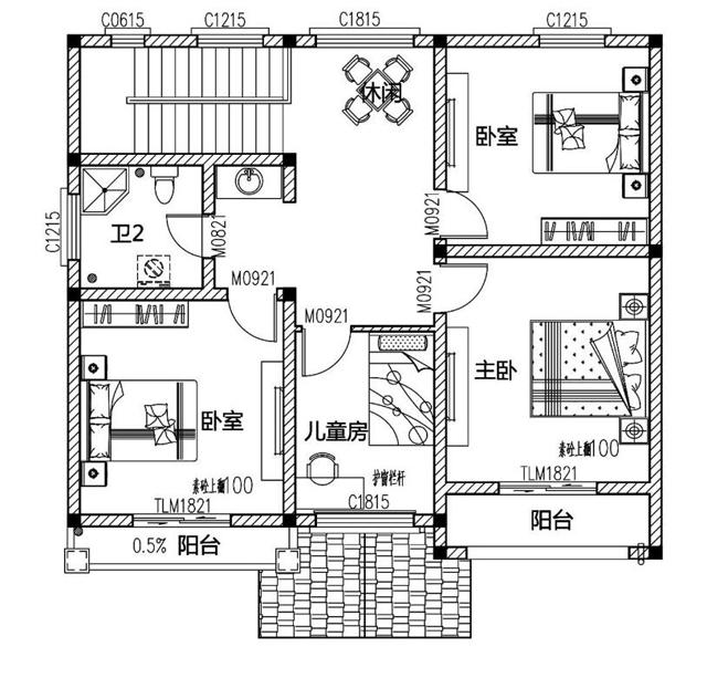
内部布局设计图:

一层设计图:一层设有室内车库,进门后首先是玄关,然后是客厅厨房和餐厅,还设有一间卧室。户型的设计较为规整,居住简洁舒适。

二层设计图:上楼后首先是休闲娱乐区,设有三间卧室和一间儿童房,两间长朝阳卧室都有阳台。
转载请注明出自轩鼎别墅设计="://www.lemeizhai.com/" _src="://www.lemeizhai.com/">://www.lemeizhai.com/