中国的传统文化有很多,上下五千年的历史也有许多流传下来的属于我们中国人自己的特色。今天我们就来看看中国文化中的建筑。国家发展越来越快,与世界的交流越来越多,许多外国的东西流入中国。在建房方面,掀起过欧式别墅的风潮,直到现在,欧式风的别墅仍然受很多人的欢迎。但真正生活在处处文化底蕴丰厚的环境中的人,往往更加懂得中国建筑的美感。不仅表现在外观上,还有户型设计也是经过几千年的进化,符合中国人的居住习惯。我们不是排斥外国的文化,而是说每个人有每个人的审美,这才是一个文化多样性的国家。
今天我们来介绍一款非常美的="://www.lemeizhai.com/newsshow.asp?ArtID=997" target="_self">中式别墅,三层设计的豪华装修
别墅效果图:

别墅外墙采用白色和青石砖交相的搭配,非常具有中国古风,屋顶还有飞檐设计,青黛瓦的屋顶使别墅浑然一体十分完美。
基本信息:
层数: 三层 结构形式: 砖混结构 主体造价: 30万 占地面积: 106平方米 建筑面积: 262平方米 规格: 8米X13.85米。
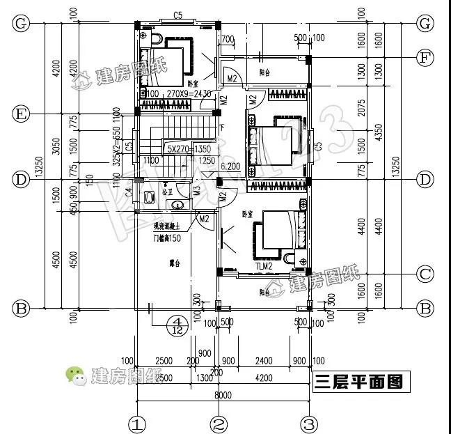
内部布局设计图

一层:有室外车库,进门后是客厅餐厅和厨房,还设有一见卧室,后面还有小面积的后院,可用来种植花卉等。

二层:设有客厅和三间卧室,主卧还有阳台

三层:有三间卧室和露台。
转载请注明出自轩鼎别墅设计="://www.lemeizhai.com/" _src="://www.lemeizhai.com/">://www.lemeizhai.com/